EasyManua.ls Logo

EZ-ACCESS Modular Ramp - Install Platform Handrails

EZ-ACCESS Modular Ramp
50 pages
Print Icon
To Next Page IconTo Next Page
To Next Page IconTo Next Page
To Previous Page IconTo Previous Page
To Previous Page IconTo Previous Page
Loading...
- 24 -
4.3.
INSTALL PLATFORM HANDRAILS:
4.3.1.
Depending on your configuration, refer to FIG. 4.4 and FIG. 4.5, as needed.
4.3.2.
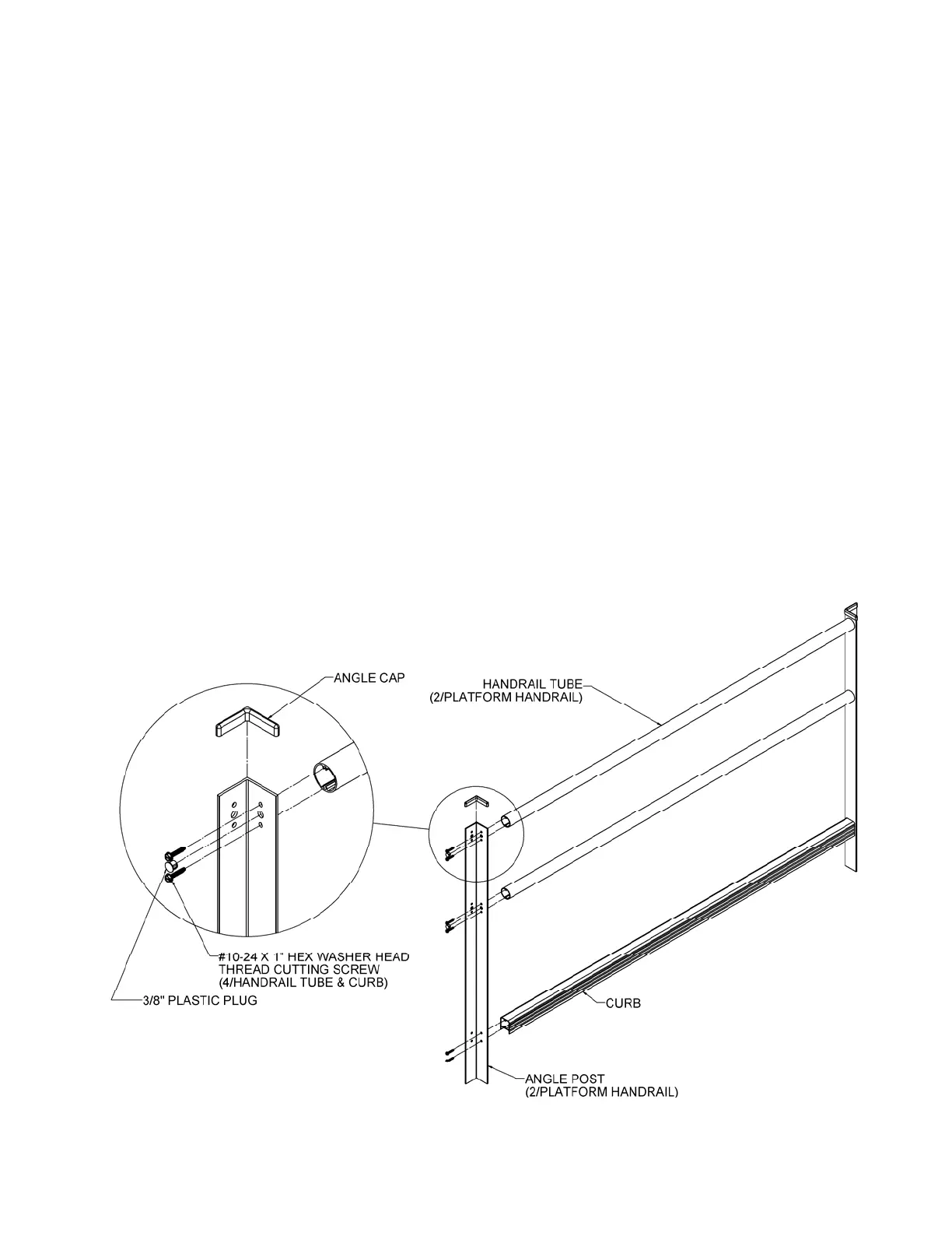
Pre-assemble the platform handrails by inserting the #10-24 hex washer head
thread cutting screws through the angle post, and into the screw slots inside
the handrail tubes and curb, then and tighten securely (FIG. 4.3).
4.3.3.
Repeat on the opposite side for straight configurations and the “first handrail
of a turn configuration. Make sure the unattached leg of the angle post is on
the same side of the handrail tubes and curb, pointing outward as shown.
4.3.4.
For the “second handrail in a turn configuration, only assemble one angle
post as described above but pay attention to how it will connect to the “first
handrail so that the angle post will be oriented correctly.
4.3.5.
For straight platform configurations and the “first handrail on a turn platform,
drop platform handrails into the corner pockets (FIG. 4.4).
4.3.6.
For the “second handrail on a turn platform, insert the angle post into a
corner pocket at 90° from the “first handrail, then pass the hex washer head
thread cutting screws through the “first handrail angle post and into the screw
slots inside the handrail tubes and curb of the “second handrail, then tighten
securely (FIG. 4.5).
4.3.7.
Tighten two each set screws on the inside of the platform corner pocket with a
3/16 Allen wrench. There is one set screw above the platform walking
surface and one underneath (FIG. 4.4).
4.3.8.
Install the plastic angle caps on the top of all handrail posts and 3/8 plastic
plugs in all 3/8 holes between the hex washer head screws. These plugs will
prevent insects from entering the handrail tubes.
FIG. 4.3

Related product manuals