EasyManua.ls Logo

Fagor HCG-10/21 - Hvg (Side View of Electrical Components)

Fagor HCG-10/21
57 pages
Print Icon
To Next Page IconTo Next Page
To Next Page IconTo Next Page
To Previous Page IconTo Previous Page
To Previous Page IconTo Previous Page
Loading...
25
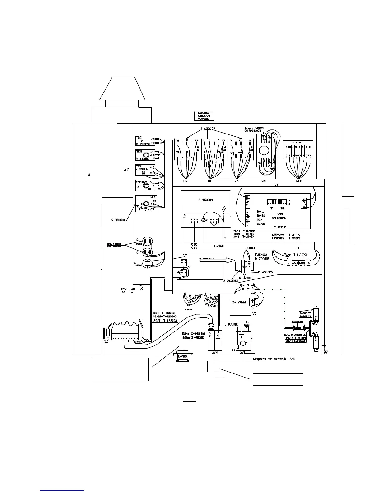
HVG (SIDE VIEW OF ELECTRICAL COMPONENTS)
fig 38
Gas intake ¾”
Electrical wiring
connection inlet

Table of Contents

Related product manuals