EasyManua.ls Logo

Fantech SHR series - Electrical Connections

Fantech SHR series
40 pages
Print Icon
To Next Page IconTo Next Page
To Next Page IconTo Next Page
To Previous Page IconTo Previous Page
To Previous Page IconTo Previous Page
Loading...
15
fantech
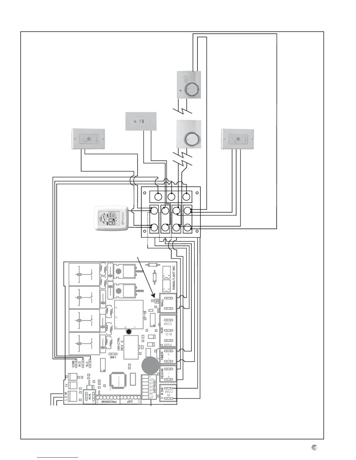
Electrical connections
- +
Custom defrost
mode jumper
selection
3 position mode
selection switch
Diagnostic
LED
U
RTS 2
(up to 5 timers)
MDEH 1
2 wires
MDEH 2
On/Off
4 wires
and /
or
(1 only)
CUR SW
DEHUM
N.C.
N.O.
TIMER
EDF
COM
FURNACE
INTERLOCK
+ -
+ -
+ -
IN COM
ECO-Touch
EDF1 and EDF1R (not shown)
RTS3
(observe polarity)
* Wiring diagram of complete unit inside of access panel
2 wires
2 wires

Related product manuals