EasyManua.ls Logo

Fantech SHR series - Schémas Électrique

Fantech SHR series
40 pages
Print Icon
To Next Page IconTo Next Page
To Next Page IconTo Next Page
To Previous Page IconTo Previous Page
To Previous Page IconTo Previous Page
Loading...
35
fantech
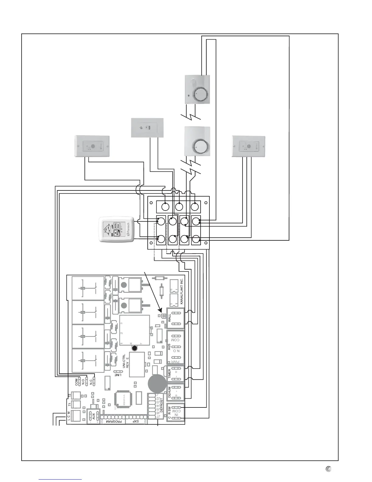
Schémas électriques
- +
Custom defrost
mode jumper
selection
3 position mode
selection switch
Diagnostic
LED
U
RTS 2
(up to 5 timers)
MDEH 1
2 wires
MDEH 2
On/Off
4 wires
and /
or
(1 only)
CUR SW
DEHUM
N.C.
N.O.
TIMER
EDF
COM
FURNACE
INTERLOCK
+ -
+ -
+ -
IN COM
ECO-Touch
EDF1 and EDF1R (not shown)
RTS3
(observe polarity)
* Wiring diagram of complete unit inside of access panel
2 wires
2 wires
Respectez la polarité sur tous les accessoires de
contrôle, le cas échéant
EDF1 ou EDF1R (non illustré)
2 ls
2 ls
RTS2
(Jusqu'à 5 contrôles)
Déshumidistat
2 ls
Interrupteur On/Off du
déshumidistat
4 ls
et/
ou (1
seule-
ment)
RTS 3 (respectez la
polarité)
DEL de
diagnostique
* Le schéma de câblage de l’appareil se trouve dans le panneau d’accès

Related product manuals