EasyManua.ls Logo

Fantech SHR series - Partially Dedicated System

Fantech SHR series
40 pages
Print Icon
To Next Page IconTo Next Page
To Next Page IconTo Next Page
To Previous Page IconTo Previous Page
To Previous Page IconTo Previous Page
Loading...
6
fantech
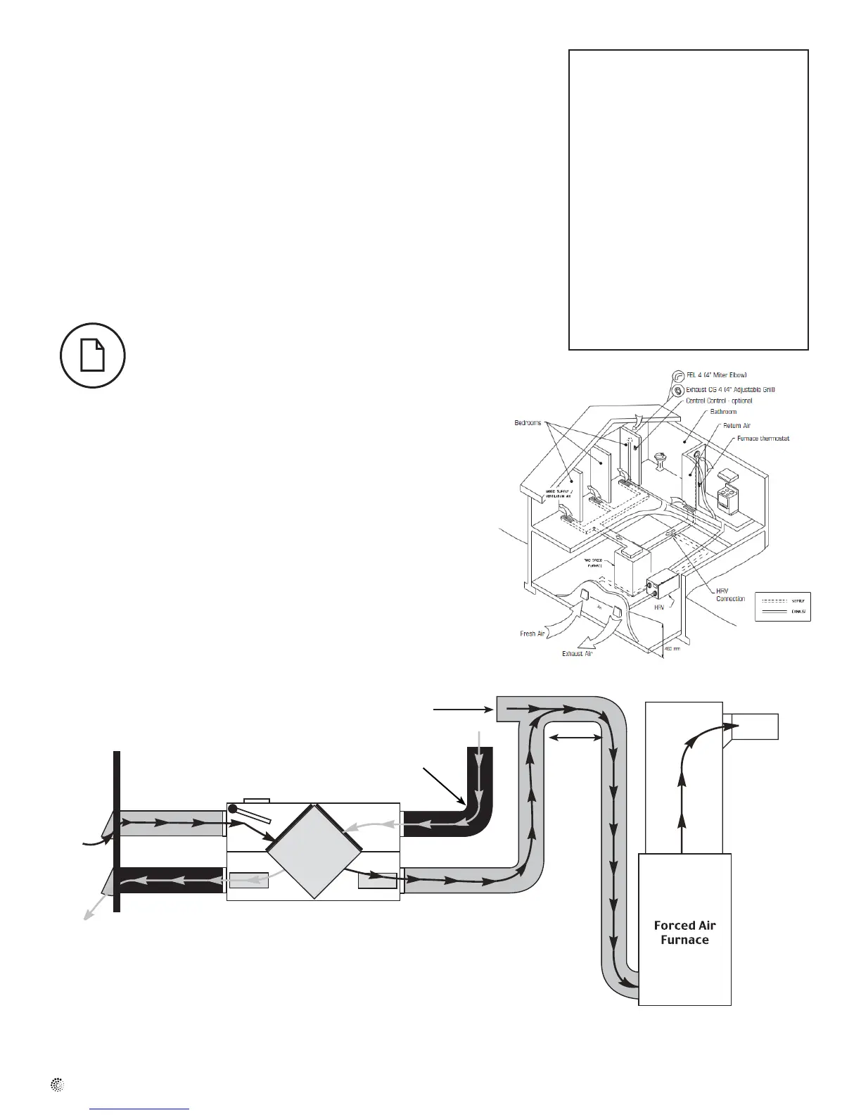
Installation examples (Cont'd)
DIRECT CONNECTION of the FRESH air to living area to the RETURN PLENUM
of the AIR HANDLER (Stale air drawn from key areas of home)
PARTIALLY DEDICATED SYSTEM (BETTER)
1. Furnace blower must operate when ventilation from HRV is required.
The furnace should be set to run continuously or interlocked with HRV.
2. Weatherhood arrangement is for illustrative purposes only. 3m
(10')minimum separation and 460 mm (18") above grade is
recommended.
3. Due to the differences in pressure between the HRV and the
equipment it is being connected to, the HRV's airflow must be
balanced on site, using the procedure found in section
“AIRFLOW BALANCING”.
HRV/Furnace ducting for Partially Dedicated System
Stale air coming from different areas of the
house (i.e. bathroom, kitchen).
* Unit air flow should be balanced while HRV is on "High" speed and fur-
nace blower is running.
Air return
1 m (3' 3")
min.
recommended
Cold air
return
* Ductwork layout may dif-
fer depending on model
Suggested installation for:
Central furnace (air
handling unit or central air
conditioners)
When ducting fresh air to
living area is not possible or
practical, i.e. expensive or
when the central AHU will
operate year-round.
Benets: Conditions the fresh
air prior to distributing it
throughout the house.

Related product manuals