EasyManua.ls Logo

Fiamma ELEKTRA - Main Electric Scheme

Fiamma ELEKTRA
28 pages
Print Icon
To Next Page IconTo Next Page
To Next Page IconTo Next Page
To Previous Page IconTo Previous Page
To Previous Page IconTo Previous Page
Loading...
12
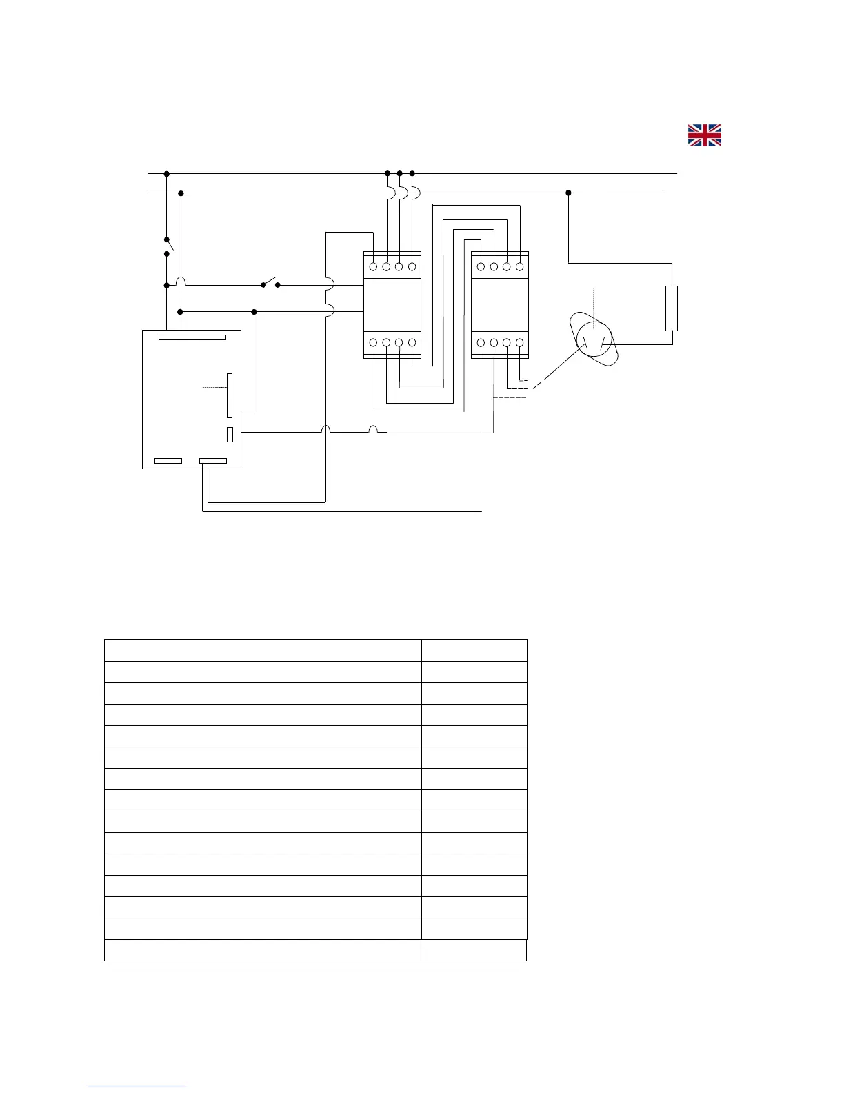
MAIN ELECTRIC SCHEME
Neutral N
Selected Phase from Contactor FT
Electronic Pump PI
Control of contact TS on Contactor of power (C-NO) cTS
Control gate triac n°1 (4KW power) G1
Control gate triac n°2 (2KW power) G2
Control gate triac n°3 (4KW power) G3
Control gate triac n°4 (2KW power) G4
Delivery heating probe (ntc sensor) SM
External probe (sensor) SE
Water pressure switch PSA
Safety thermostat TS
Room thermostat (terminal provided) TA
Single phase F
MAIN ELECTRIC SCHEME
Legend electric scheme
F
N
GX
TS
ON/OFF
GX
Main P C B
LOVATO
BF09
Contatto
TS
FT
N
A2
LOVATO
BF09
A1
R
brown
blue
blue
blue
black
black
brown
brown
blue
blue
black
black
black
black
blue
230V-50Hz.
brown
brown
brown
General switch ON/OFF

Table of Contents

Related product manuals