EasyManua.ls Logo

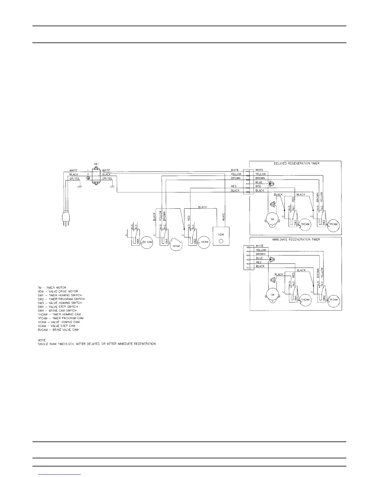
Fleck 3150 - 3150 System #4 Valve Wiring; Delayed Regeneration Timer Wiring; Immediate Regeneration Timer Wiring

Fleck 3150
36 pages
Print Icon
To Next Page IconTo Next Page
To Next Page IconTo Next Page
To Previous Page IconTo Previous Page
To Previous Page IconTo Previous Page
Loading...
Printed in U.S.A.
Page 21
3150 System #4
Valve Wiring

Related product manuals