EasyManua.ls Logo

Flotec FPSC1725X - Page 31

Flotec FPSC1725X
36 pages
Print Icon
To Next Page IconTo Next Page
To Next Page IconTo Next Page
To Previous Page IconTo Previous Page
To Previous Page IconTo Previous Page
Loading...
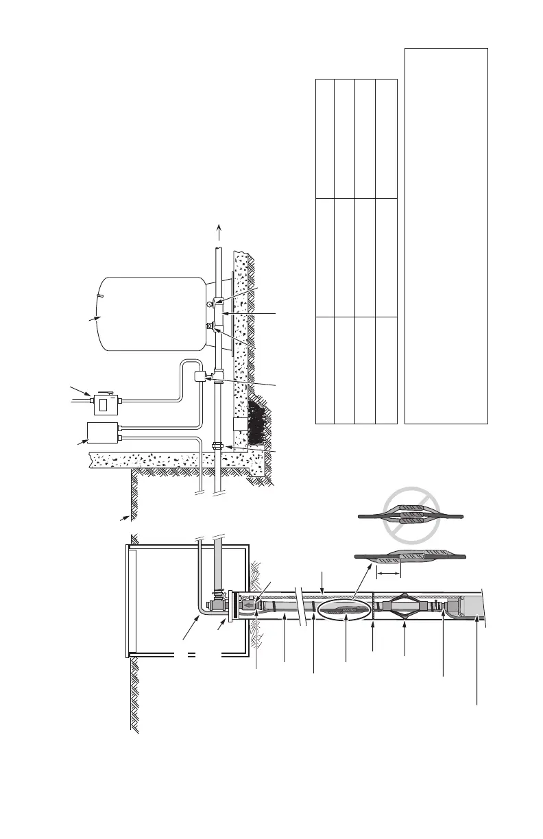
Union
Control box (3 wire models only)
Electrical Disconnect Box
Pressure Gauge
Pressure Switch
To House Service
Relief Valve
Power Cable
Nylon Tape
Safety Rope
Cable Splices
Plastic Pipe
Adapter
Plastic Pipe
Adapter
Pump
Check
Valve
Centering Guide
Splice Cables
Like This – Not Like This
4"
Pre-Charged Tank Installation
Sanitary Well Seal
Tank Tee
Ground Level
Pre-Charged Tank
Well Seal (Purchase
Separately)
Conduit or Sleeve
Insulated/Heated
Box
PSI de activación PSI de desactivación Presión de precarga
20 (138 kPa) 40 (276 kPa) 18 PSI (124 kPa)
30 (207 kPa) 50 (345 kPa) 28 PSI (193 kPa)
40 (276 kPa) 60 (414 kPa) 38 PSI (262 kPa)
Unión
Válvula de
desahogo
Tanque precargado
Manómetro
Válvula de
retención
Bomba
Al servicio doméstico
Conmutador a
presión
NOTA: Los motores bifilares no usan una caja de control. Haga correr el
cable del motor desde el manóstato directamente al motor.
Ver páginas 25–29 para las instrucciones
detalladas del cableado.
Sello sanitario del pozo
Nivel del suelo
Caja de control (modelos trifilares solamente)
Instalación del tanque precargado
Caja del disyuntor
Caja aislada /
calentada
Conducto o manguito
Sello del pozo (adquirir
por separado)
Adaptador de
tubería de plástico
Cable de alimentación
Cinta de nailon
Empalmes del cable
Guía de centrado
Cuerda de
seguridad
Adaptador de
tubería de plástico
Té del tanque
Así No así
Empalmar cables
31
Figura 12 – Instalación típica sumergible con instalación de tanque precargado

Related product manuals