EasyManua.ls Logo

Flotec FPSC1725X - Page 32

Flotec FPSC1725X
36 pages
Print Icon
To Next Page IconTo Next Page
To Next Page IconTo Next Page
To Previous Page IconTo Previous Page
To Previous Page IconTo Previous Page
Loading...
32
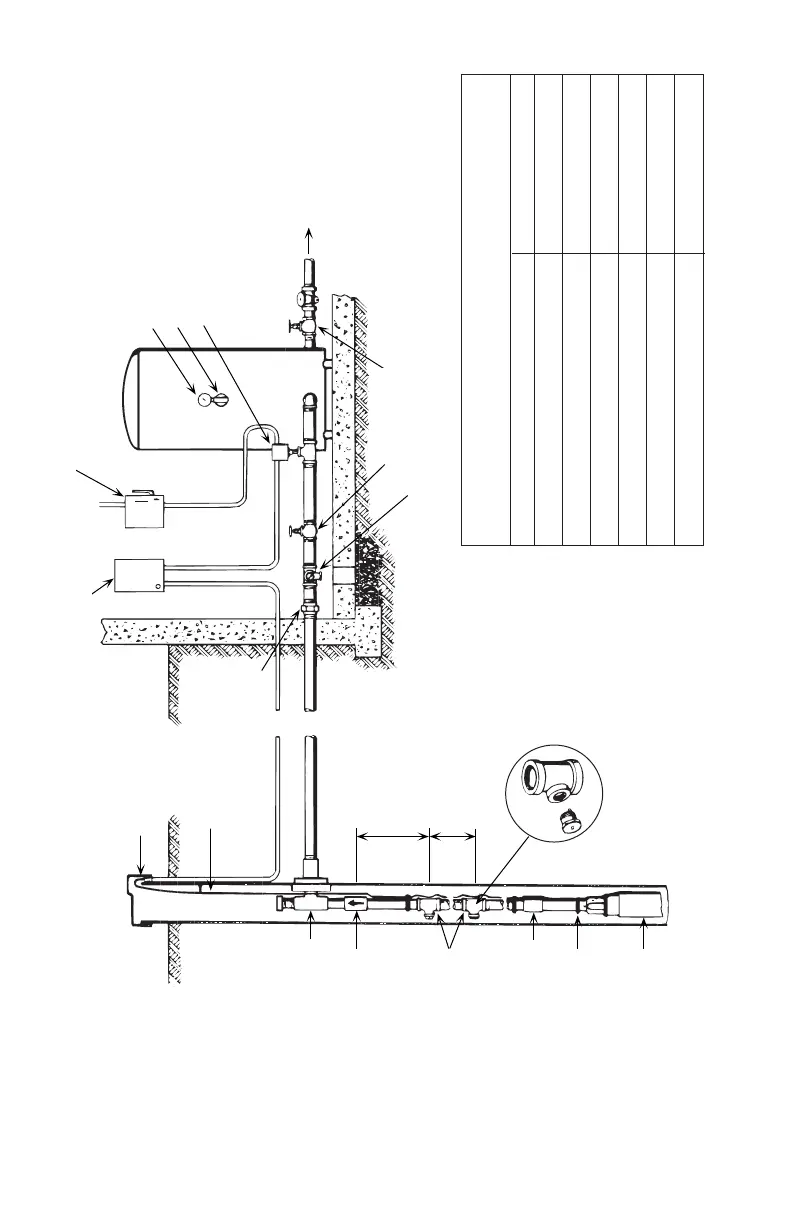
PITLESS
ADAPTOR
CHECK VALVE
BLEEDER
ORIFICE
& TEE
PIPE
COUPLING
TAPE CABLE
TO PIPE
PUMP
VENTILATED
WELL CAP
SUBMERSIBLE
CABLE
UNION
CONTROL BOX
(3 WIRE MODELS)
ELECTRICAL DISCONNECT
PRESSURE GAUGE
AIR VOLUME CONTROL
PRESSURE SWITCH
TO HOUSE SERVICE
GATE VALVE
RELIEF VALVE
2 ft.
(.6m)
SEE TABLE
Figura 13 – Instalación del tanque de presión estándar
DISTANCIA DE LA VÁLVULA DE RETENCIÓN
AL ORIFICIO SUPERIOR DE PURGA
TAMAÑO DEL TANQUE DISTANCIA
42 galón (159 L) 2’ (0,6 m)
82 galón (310 L) 3’ (0,9 m)
120 galón (454 L) 5’ (1,4 m)
220 galón (833 L) 5’ (1,4 m)
315 galón (1 192 L) 10’ (3,0 m)
525 galón (1 987 L) 15’ (4,6 m)
CAJA DE CONTROL
(MODELOS TRIFILARES)
DESCONEXIÓN ELÉCTRICA
MANÓMETRO
CONTROL DE VOLUMEN DE AIRE
CONMUTADOR A PRESIÓN
AL SERVICIO DOMÉSTICO
VÁLVULA DE
COMPUERTA
VÁLVULA DE DESAHOGO
VER TABLA
BOMBA
ADHERIR EL CABLE
A LA TUBERÍA
ACOPLAMIENT
O DEL TUBO
ORIFICIO DE
PURGA Y T
VÁLVULA DE RETENCIÓN
UNIÓN
CABLE
SUMERGIBLE
CASQUETE VENTILADO
DEL POZO
ADAPTADOR DESLIZANTE
DE DERIVACIÓN
2’
(0,6 m)

Related product manuals