EasyManua.ls Logo

Fluke DTX-1200 - Page 34

Fluke DTX-1200
56 pages
Print Icon
To Next Page IconTo Next Page
To Next Page IconTo Next Page
To Previous Page IconTo Previous Page
To Previous Page IconTo Previous Page
Loading...
DTX Series CableAnalyzer
Users Manual
28
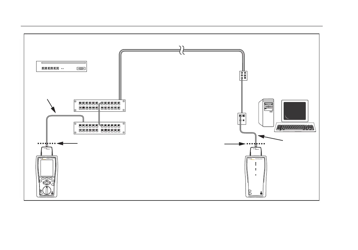
Work area
Optional
consolidation
point
Patch
panels
Hub or switch
Wall
outlet
Horizontal cabling
End
channel
Tester with
channel adapter
Smart remote with
channel adapter
Patch
cord
from PC
Patch cord
from hub or
switch
Start
channel
TEST
LOW BATTERY
TONE
TALK
FAIL
TEST
PASS
TALK
TALK
MONITOR
ENTER
TEST
SAVE
SPECIAL
FUNCTIONS
SETUP
AUTO
TEST
SINGLE
TEST
EXIT
F1 F2 F3
amd21f.eps
Figure 12. Channel Test Connections

Other manuals for Fluke DTX-1200

Related product manuals