EasyManua.ls Logo

Friedrich FPHFR18A3A - Product Dimensions: 24 K Ducted Indoor Units

Friedrich FPHFR18A3A
193 pages
Print Icon
To Next Page IconTo Next Page
To Next Page IconTo Next Page
To Previous Page IconTo Previous Page
To Previous Page IconTo Previous Page
Loading...
14 PB
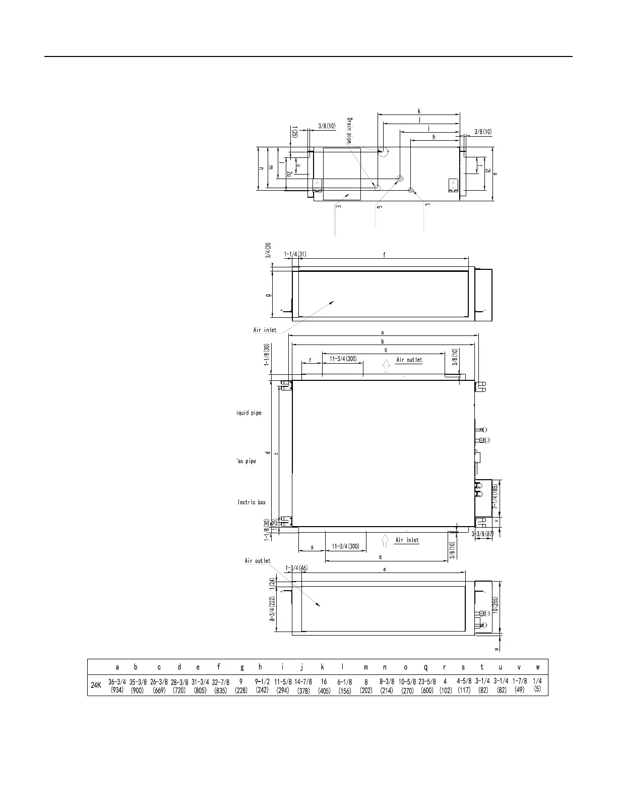
SPECIFICATIONS
Product Dimensions: 24k Ducted Indoor Units
Model
Unit: Inches”(mm)
Figure 204

Table of Contents

Related product manuals