EasyManua.ls Logo

Frigomat GX4 Kompact - Page 58

Frigomat GX4 Kompact
Print Icon
To Next Page IconTo Next Page
To Next Page IconTo Next Page
To Previous Page IconTo Previous Page
To Previous Page IconTo Previous Page
Loading...
FRIGOMAT GX4Kompact, GX6, GX8 M04.42026 R.2019.05.30 ii
IT
GX4 Kompact Batch Freezer
Specifications
Electrical
One dedicated electrical connection is required. See the Electri-
cal chart for the proper electrical requirements. Manufactured to
be permanently connected. Consult your local distributor for cord
& receptacle specifications as local codes allow.
Freezing Cylinder
4 x 6 lt. (6.3 quart).
Beater Motor
4 x 550 W (3/4 HP).
Refrigeration System
2 x ~1125 W R452A (2x 660 g)
(@ - 23.3°C evap. / + 45°C cond.)
Water Cooled
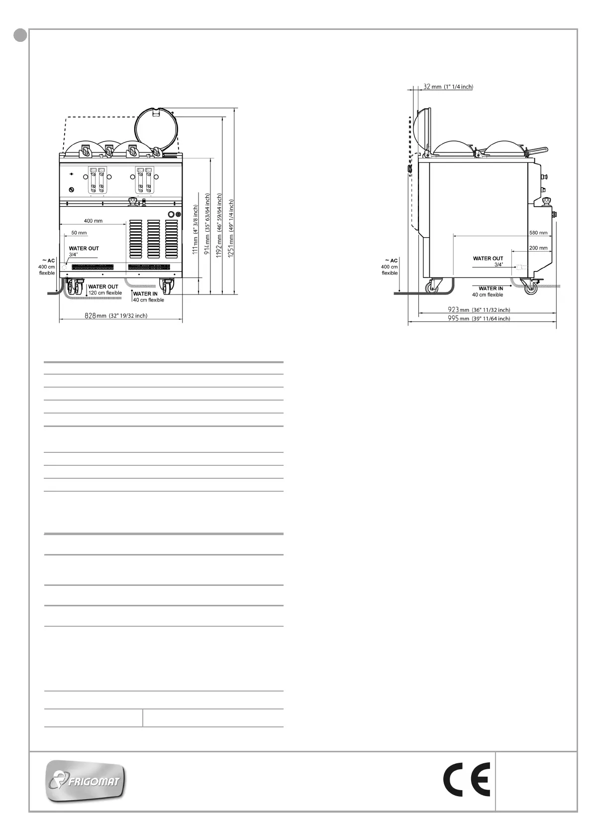
Water inlet and drain connections on the bottom 1/2” MPT.
Sound pressure level
< 78 dB(A)
Accessories
Air deflector.
Protective glass.
Continuing research results in steady improvements;
therefore, these specifications are subject to change
without notice.
FRIGOMAT
ISO 9001:2015
Registered Firm
Electrical Maximum
Fuse Size
A kW
400/50/3+N
415/50/3+N
Water
T16
12 3.6
380/60/3
Water
T16
12 3.7
220/60/3
Water
T25
18 3.7
(For exact electrical information, always refer to the data
label of the unit.)
Bidding Specs
Electrical: Volt________ Hz________ ph________
Neutral: □Yes □No Cooling: □ Air □ Water □ NA
Options:____________________________________
Weights lbs. kg
Net 750 340
Crated 903 410
Shipping Volume cu. ft. cu. m.
Crate 38.1 1.08
Dimensions in. mm
Width 32-19/32 830
Depth 35-1/2 900
Height 36 914
Counter Clearance: 3-1/8” mounted on standard legs.

Related product manuals