EasyManua.ls Logo

Frigomat GX4 Kompact - Page 59

Frigomat GX4 Kompact
Print Icon
To Next Page IconTo Next Page
To Next Page IconTo Next Page
To Previous Page IconTo Previous Page
To Previous Page IconTo Previous Page
Loading...
FRIGOMAT GX4Kompact, GX6, GX8 M04.42026 R.2019.05.30 iii
EN
IT
FR
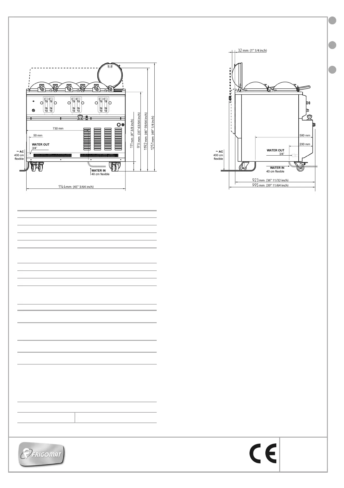
GX6 Batch Freezer
Specifications
Electrical
One dedicated electrical connection is required. See the Electri-
cal chart for the proper electrical requirements. Manufactured to
be permanently connected. Consult your local distributor for cord
& receptacle specifications as local codes allow.
Freezing Cylinder
6 x 6 lt. (6.3 quart).
Beater Motor
6 x 550 W (3/4 HP).
Refrigeration System
3 x ~1125 W R452A (3x 660 g)
(@ - 23.3°C evap. / + 45°C cond.)
Water Cooled
Water inlet and drain connections on the bottom 1/2” MPT.
Sound pressure level
< 78 dB(A)
Accessories
Air deflector.
Protective glass.
Continuing research results in steady improvements;
therefore, these specifications are subject to change
without notice.
FRIGOMAT
ISO 9001:2015
Registered Firm
Electrical Maximum
Fuse Size
A kW
400/50/3+N
415/50/3+N
Water
T25 16 5.4
220/60/3
Water
T32 25 5.6
380/60/3
Water
T25 17 5.6
(For exact electrical information, always refer to the data
label of the unit.)
Bidding Specs
Electrical: Volt________ Hz________ ph________
Neutral: □Yes □No Cooling: □ Air □ Water □ NA
Options:____________________________________
Weights lbs. kgs
Net 915 415
Crated 1047 475
Shipping Volume cu. ft. cu. m.
Crate 56,50 1.60
Dimensions in. mm
Width 45 1145
Depth 35-1/2 900
Height 36 914
Counter Clearance: 3-1/8” mounted on standard legs.

Related product manuals