EasyManua.ls Logo

Fronius Primo GEN24 4.0 - Fronius Primo GEN24 with Three BYD Battery-Box Premium HV Connected in Parallel; Circuit Diagram

Fronius Primo GEN24 4.0
232 pages
To Next Page IconTo Next Page
To Next Page IconTo Next Page
To Previous Page IconTo Previous Page
To Previous Page IconTo Previous Page
Loading...
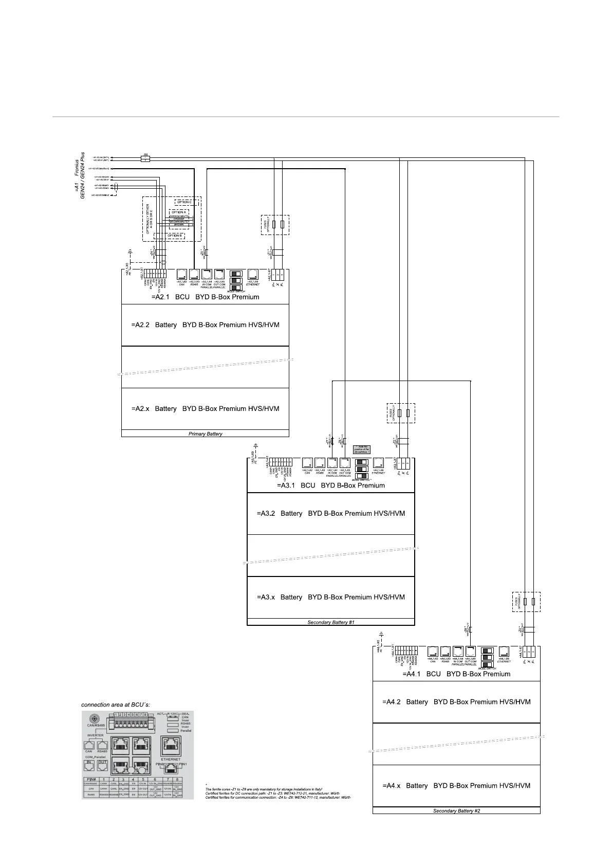
Fronius Primo GEN24 with three BYD Battery-
Box Premium HV connected in parallel
Circuit Diagram
211

Table of Contents

Related product manuals