EasyManua.ls Logo

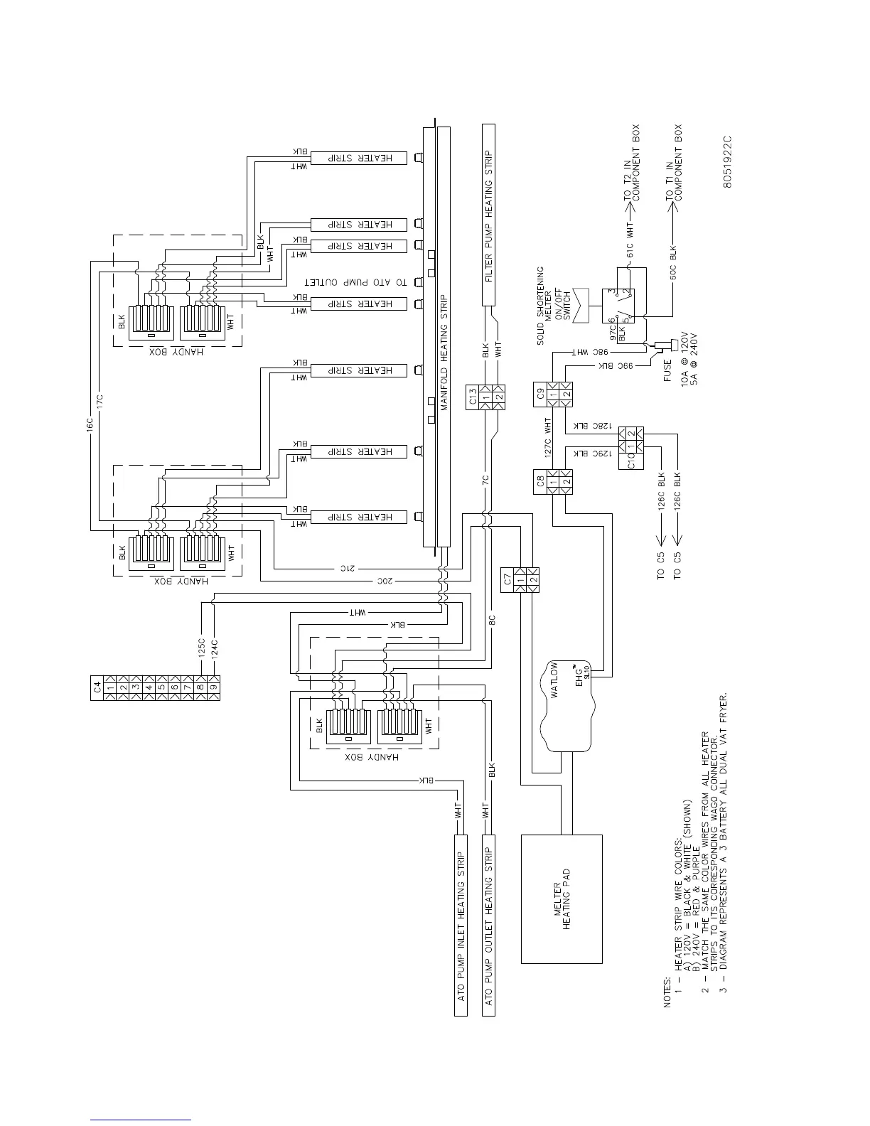
Frymaster BIGLA30 Series - Shortening Melting Unit Wiring Diagram after Mar. 2012

Frymaster BIGLA30 Series
76 pages
Print Icon
To Next Page IconTo Next Page
To Next Page IconTo Next Page
To Previous Page IconTo Previous Page
To Previous Page IconTo Previous Page
Loading...
1-66
1.23.2 Shortening Melting Unit Wiring Diagram after March 2012

Table of Contents

Related product manuals