EasyManua.ls Logo

Fujitsu ASYG12LJCA - Page 106

Fujitsu ASYG12LJCA
413 pages
Print Icon
To Next Page IconTo Next Page
To Next Page IconTo Next Page
To Previous Page IconTo Previous Page
To Previous Page IconTo Previous Page
Loading...
4. INDOOR UNITS
nit  
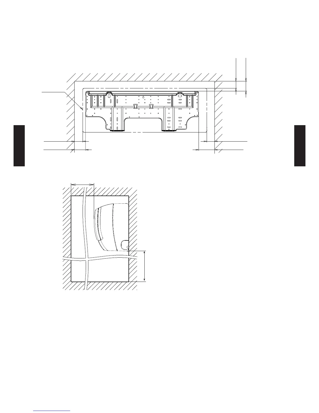
INSTALLATION PLACE
1500 or more
1800 or more
63 or more
45 or more
48 or more
52 or more
Outline of unit
70 or more
100 or more
    
INDOOR
UNITS
INDOOR
UNITS

Table of Contents

Other manuals for Fujitsu ASYG12LJCA

Related product manuals