EasyManua.ls Logo

Fujitsu AUU9RLF - Sound Level Check Point

Fujitsu AUU9RLF
319 pages
Print Icon
To Next Page IconTo Next Page
To Next Page IconTo Next Page
To Previous Page IconTo Previous Page
To Previous Page IconTo Previous Page
Loading...
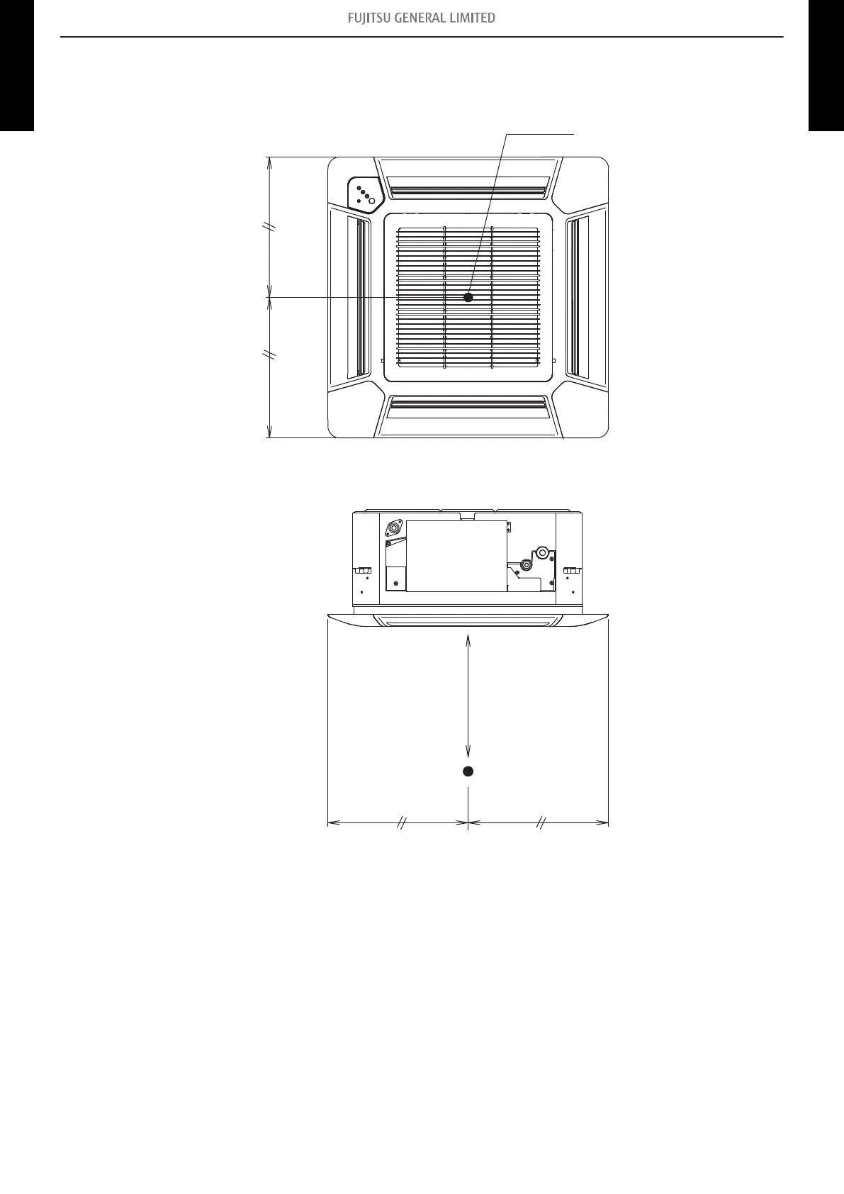
8-5. Sound level check point
¢
Compact cassette type
Microphone
Microphone
60 in (1.5 m)
- 93 -
8-5. Sound level check point 8. Noise level curve
MULTI TYPE
2, 3, 4 ROOMS TYPE
MULTI TYPE
2, 3, 4 ROOMS TYPE

Table of Contents

Other manuals for Fujitsu AUU9RLF

Related product manuals