EasyManua.ls Logo

Fujitsu AUU9RLF - Slim Duct Type

Fujitsu AUU9RLF
319 pages
Print Icon
To Next Page IconTo Next Page
To Next Page IconTo Next Page
To Previous Page IconTo Previous Page
To Previous Page IconTo Previous Page
Loading...
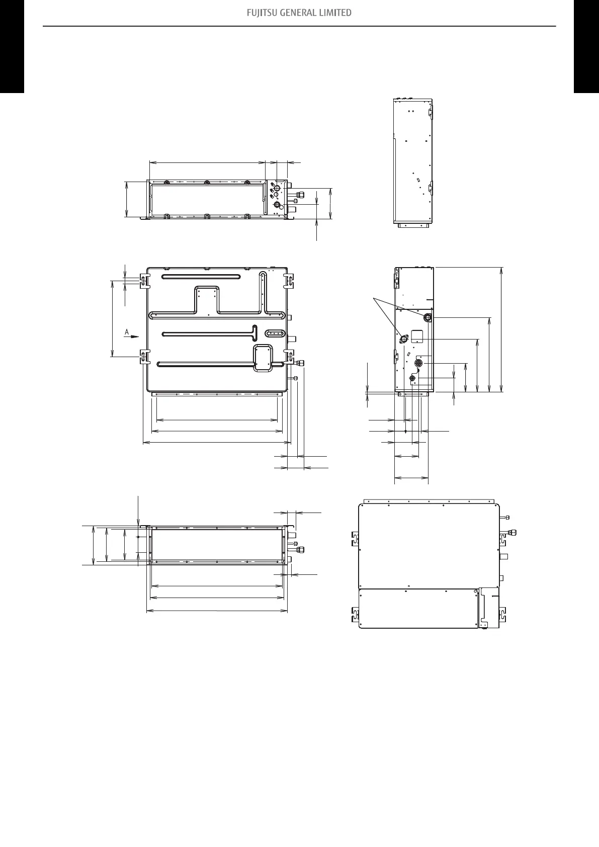
3-2. Slim duct type
¢ Models: ARU7RLF, ARU9RLF, and ARU12RLF
Rear view
View A
Top view
Side view
Front view
Bottom view
Drain port
2 (51)
22-5/8 (574)
6-17/8 (174)
2-13/16 (71)
6 (152)
3-15/16 (100) x 6 = 23-5/8 (600)
3-7/32 (82)
1-7/8 (48)
25-9/16 (650)
28-7/8 (734)
1-3/16 (30)
14-13/16 (377)
6-9/16
(167)
4-11/16 (119)
3-1/2 (89)
3-1/16 (78)
2-3/16 (55)
1-7/8 (47)
3/8 (10)
24-7/16 (620)
14-5/8 (371)
10-3/8 (264)
5-11/16 (144)
2-11/16 (69)
25-9/16 (650)
26-1/8 (664)
27-9/16 (700)
1-11/16 (43)
13/16 (20)
7-13/16 (198)
6-5/8 (168)
5-15/16
(151)
3-1/16 (78) 2-3/16 (55)
Unit: in (mm)
- 16 -
3-2. Slim duct type 3. Dimensions
MULTI TYPE
2, 3, 4 ROOMS TYPE
MULTI TYPE
2, 3, 4 ROOMS TYPE

Table of Contents

Other manuals for Fujitsu AUU9RLF

Related product manuals