EasyManua.ls Logo

Fujitsu AUU9RLF - Dimensions; Model: AOU24 RLXFZ

Fujitsu AUU9RLF
319 pages
Print Icon
To Next Page IconTo Next Page
To Next Page IconTo Next Page
To Previous Page IconTo Previous Page
To Previous Page IconTo Previous Page
Loading...
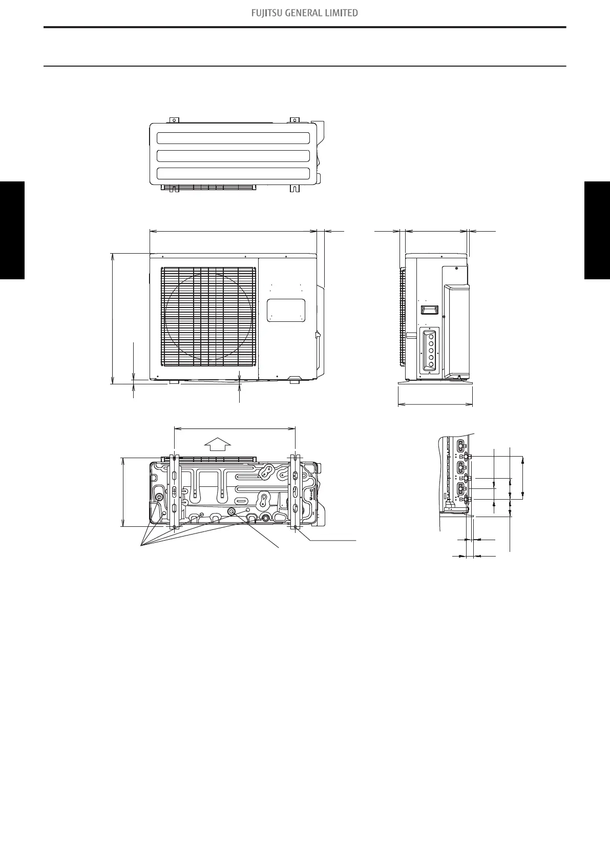
2. Dimensions
2-1. Model: AOU24RLXFZ
Unit: in (mm)
2
/1-4
)
4
11(
)82
2(
9
4/
1
-2
)75(
1/2
(12)
3-11/16 (94)
1-5/8
(41)
Top view
Front view
Side view
35-7/16 (900)
27-9/16 (700)
13/16 (21)
3/8
(9)
1-9/16
(40)
1-1/4
(31)
1/2
(12)
13 (330)
15-3/4 (400)
Bottom view
14-7/8 (370)
25-9/16 (650)
4-Ø1/2 (Ø12)
Drain cap mounting places Drain pipe mounting places
Airflow
- 207 -
2-1. Model: AOU24RLXFZ 2. Dimensions
OUTDOOR UNIT
AOU24RLXFZ
OUTDOOR UNIT
AOU24RLXFZ

Table of Contents

Other manuals for Fujitsu AUU9RLF

Related product manuals