EasyManua.ls Logo

FULTON Endura - Page 46

FULTON Endura
118 pages
Print Icon
To Next Page IconTo Next Page
To Next Page IconTo Next Page
To Previous Page IconTo Previous Page
To Previous Page IconTo Previous Page
Loading...
© Fulton Group N.A., Inc. 2022
INSTALLATION EDR-SOLA-IOM-2022-0216 SECTION 2
2-40
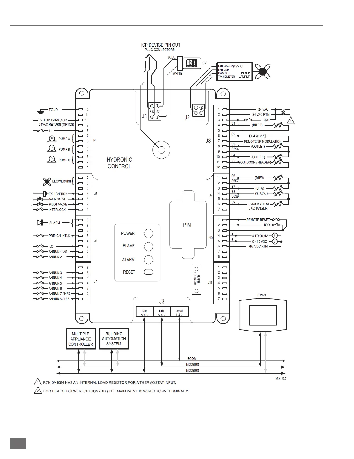
FIGURE 25  FULTON SOLA PIN LAYOUT
Fulton
SOLA
FULTON SOLA
Notes:
See Reference Eletrical Schematic Diagrams for eld wiring connections.
Refrence the R7910A SOLA HC (Hydronic Control) manual for additional information.

Related product manuals