EasyManua.ls Logo

FULTON Vantage VTG 6000DF - Exhaust Venting

FULTON Vantage VTG 6000DF
149 pages
Print Icon
To Next Page IconTo Next Page
To Next Page IconTo Next Page
To Previous Page IconTo Previous Page
To Previous Page IconTo Previous Page
Loading...
Questions? Please Contact Your Local Manufacturer’s Representative
SECTION 2 VTG-IOM-2016-1214 INSTALLATION
2-27
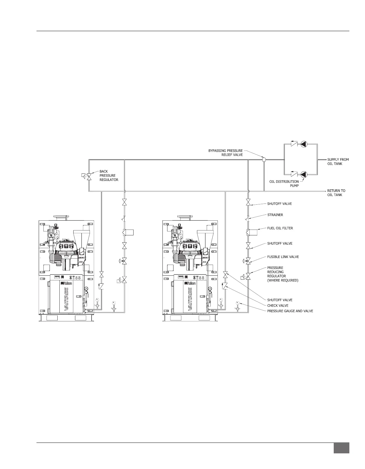
Note: All installations must be in compliance with local and national codes. Typical installation diagrams con-
tained in this manual are for reference purposes only.
FIGURE 17  SYSTEM USING COMMON OIL PIPING FOR MULTIPLE BOILERS
(INSTALLED HORIZONTALLY)
(HANDLE REMOVED)

Table of Contents

Related product manuals