EasyManua.ls Logo

Furuno 2137S - System Configuration

Furuno 2137S
123 pages
Print Icon
To Next Page IconTo Next Page
To Next Page IconTo Next Page
To Previous Page IconTo Previous Page
To Previous Page IconTo Previous Page
Loading...
v
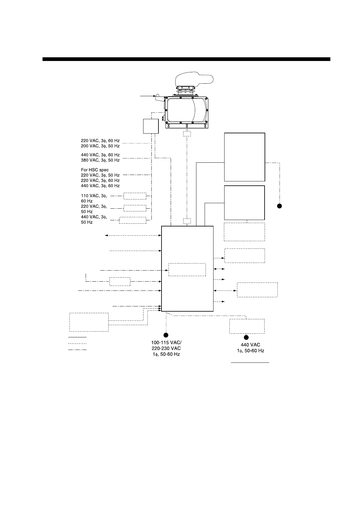
SYSTEM CONFIGURATION
PROCESSOR UNIT
RPU-013
(Navigator)
EPFS
IEC-61162 Serial Data
(Input/Output)
IEC-61162 Serial Data
(Input)
Gyrocompass
AIS
Track Control Unit
: Option
: Dockyard supply
: Standard
AD-100
MEMORY CARD
INTERFACE UNIT
CU-200-FAR
VDR
External Monitor
Sub Display
Alarm****
CONTROL UNIT
RCU-014
(Standard)
or
RCU-015
(Trackball)
Control Unit
RCU-016
(Remote)
Transformer Unit
RU-1803
ANTENNA UNIT
Gyro Converter
GC-10
RSB-098/099
RSB-100/101/102 (for HSC)
Performance Monitor
RJB-001 **
RJB-001 **
100-230 VAC
SN30AF/
SN36AF
POWER SUPPLY
UNIT PSU-007
RU-6522
RU-5693
RU-5466-1
*: For FAR-2137S-BB, a monitor unit is prepared by user. See page 1-8.
Category of Units
Antenna Unit: Exposed to weather
All other units: Protected from weather
Radiator
AC spec. only
Chassis
***
***
***
**: Used for antenna cable more than 100 m.
***: Not available for HSC spec.
Switching HUB
HUB-100
1)
SDME
Speed Log
2)
3)
****: Contact output for Alarm
(Load current) 120mA, (Polarity) No.1/2: Normally Close, No.3/4: Normally Open
Serial I/O for alarm is also possible, which complies with IEC 61162-1.
These monitors have been approved by the IMO, MU-190/201CR for CAT2,
MU-231/231CR for CAT1. If a different monitor is to be used, its effective
diameter must meet the applicable Category requirements:
CAT 1: effective diameter 320 mm or higher, CAT 2: effective diameter 250 mm or higher
Refer to their operator's manuals for details.
MONITOR UNIT
MU-201CR
or
MU-190
(FAR-2137S)
MU-231CR
or
MU-231
(FAR-2837S)
*
1) Connect the EPFS which is approved in accordance with the requirements of the IMO in
resolution MSC. 112(73) is used.
2) Connect the SDME which is approved in accordance with the requirements of the IMO
in resolution MSC.96(72) is used.
3) Use the gyrocompass having an update rate that is adequate for the ship’s rate of turn.

Related product manuals