EasyManua.ls Logo

Gared 2500 - Special Bracket Considerations

Gared 2500
21 pages
Print Icon
To Next Page IconTo Next Page
To Next Page IconTo Next Page
To Previous Page IconTo Previous Page
To Previous Page IconTo Previous Page
Loading...
2500 Wall Mount
13
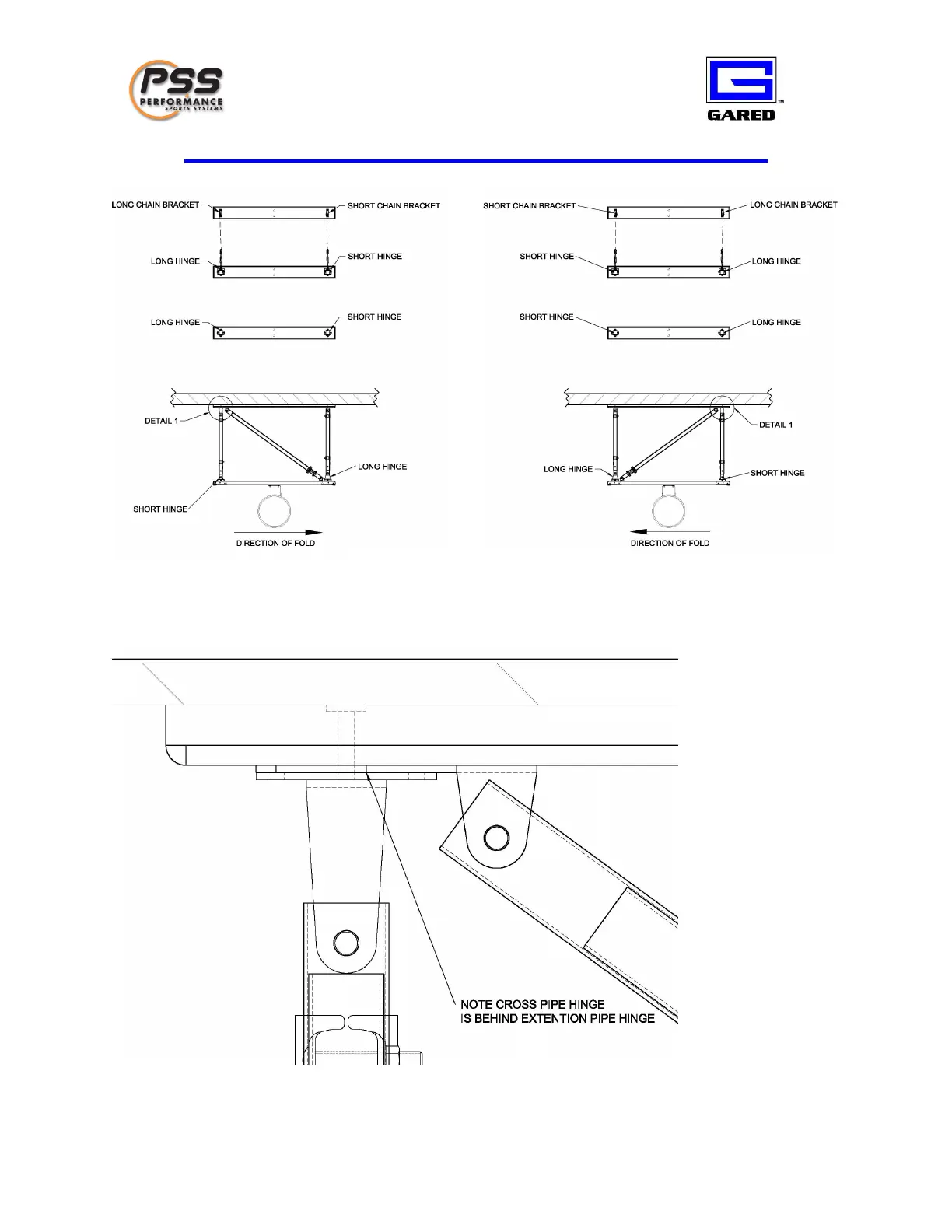
SPECIAL BRACKET CONSIDERATIONS
Use the figures above to set up your hardware to match the directio n of fold desired. Check with
the General Contractor or Architect to confirm correct direction of fold. Note the placement of
the cross brace pipe hinge as shown in the detail below.

Related product manuals