EasyManua.ls Logo

GBC AdvancedPunch Pro - 4 Bedieneraufgaben

GBC AdvancedPunch Pro
92 pages
Print Icon
To Next Page IconTo Next Page
To Next Page IconTo Next Page
To Previous Page IconTo Previous Page
To Previous Page IconTo Previous Page
Loading...
46
D
AdvancedPunch
TM
Pro
4. BEDIENERAUFGABEN
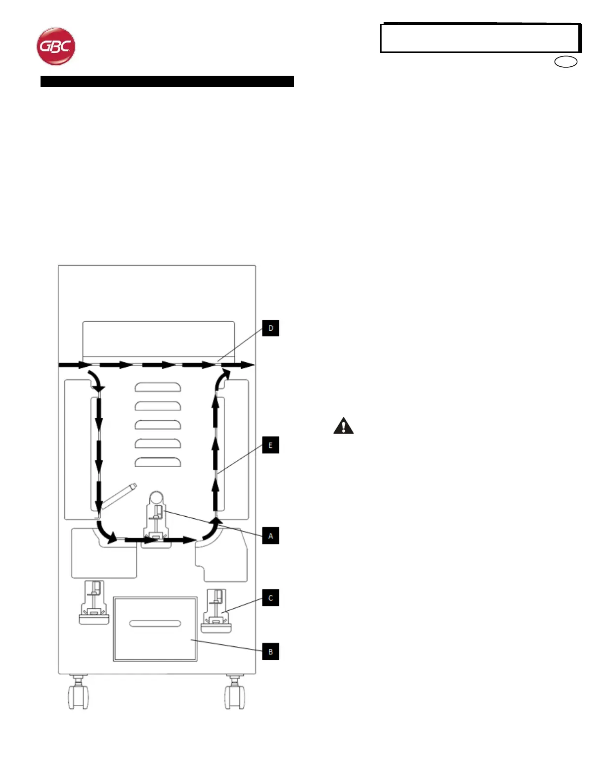
A. Auswechseln der Lochstempel:
Erfordert keine Werkzeuge und dauert nur wenige Sekunden
B. Lochabfallbehälter:
Bequem zugänglicher Abfallbehälter zur schnellen Entsorgung der
Lochabfälle
C. Aufbewahrung der Lochstempel:
Stauraum für bis zu zwei Lochstempel.
D. Bypass:
Kurzer Papierweg für Dokumente, die nicht gelocht werden sollen
E. Papierweg für Lochmodus:
Großzügiger Radius in der Wendung, akzeptiert Pappen bis
300g/m
2
Papierführung und interaktive Bedienerbereiche des AdvancedPunch Pro
A. Auswechseln der Lochstempel:
Ihr AdvancedPunch Pro verfügt über auswechselbare Lochstempel,
damit Sie Dokumente für viele verschiedene Bindearten wirtschaftlich
lochen können. Das Auswechseln der Lochstempel ist einfach und
nimmt wenig Zeit in Anspruch, wie die nachfolgende Anleitung zeigt:
Hinweis: Weiterführende Anweisungen zur Lochstempelkonfiguration
finden Sie im Abschnitt 8 des AdvancedPunch Pro Lochstempel-
Benutzerhandbuchs.
Entfernen der Lochstempel aus dem Gerät: Die Montagerinne der
auswechselbaren Lochstempel des AdvancedPunch Pro befindet sich
neben dem Locherabfallbehälter im unteren Teil des Lochers.
Schritt 1: Drucker/Kopierer anhalten.
Schritt 2: Zugangstür des AdvancedPunch Pro öffnen
Schritt 3: Greifen Sie sicher den Lochstempelverriegelungsgriff
und drehen Sie nach links, wie auf dem Etikett in der Nähe des
Lochstempelverriegelungsgriffs angegeben. Dadurch wird der
Lochstempel von der verriegelten Position gelöst.
Schritt 4: Den Lochstempel mit beiden Händen ganz
herausziehen.
Schritt 5: Den herausgenommenen Lochstempel im dafür
vorgesehenen Stauraum aufbewahren. (Schutz vor Staub,
versehentlichem Herunterfallen an Thekenkanten, usw.).
Schritt 6: Den gewünschten Lochstempel für den neuen
Arbeitsauftrag auswählen und in den Lochstempeleinschub
schieben. Den Lochstempel fest einschieben, bis der
Stempelanschlag am runden Magneten anliegt. Dies ist
entscheidend, um die ordnungsgemäße Ausrichtung des
Lochstempels zu gewährleisten.
Schritt 7: Den Griff greifen und nach rechts drehen bis der Riegel
voll einrastet, wie auf dem Etikett angegeben
VORSICHT: EINKLEMMGEFAHR. BEI DER MONTAGE
RFEN FINGER UND ANDERE KÖRPERTEILE NICHT MIT
DER MONTAGERINNE UND ANDEREN BEREICHEN DES
LOCHSTEMPELS IN BERÜHRUNG KOMMEN, AUßER MIT
DER FINGERÖFFNUNG AM LOCHSTEMPEL. EIN NICHT-
EINHALTEN DIESER VORSICHTSMASSNAHMEN KANN ZU
VERLETZUNGEN FÜHREN.
Schritt 8: Zugangstür schließen.
Schritt 9: Fahren Sie mit Ihrem Druck- und Lochauftrag fort.
Beachten Sie, dass sich bei Verwendung eines neuen Stempels ein
wenig Öl auf dem Blatt um die gestanzten Löcher sammelt. Nach dem
Lochen von 25 bis 50 Blättern hinterlässt der Stempel kein Öl mehr auf
den Blättern. Es wird empfohlen einen kleinen Test-Druckauftrag
durchzuführen, wenn ein neuer Stempel oder ein frisch geölter Stempel
eingebaut wurde.
B. Lochabfallbehälter:
Der Lochabfallbehälter des AdvancedPunch Pro befindet sich vorn im
Sockel der Maschine. Der Einschub sollte regelmäßig herausgezogen
und geleert werden. Der AdvancedPunch Pro ist mit einem Sensor
ausgestattet, der erkennt, wenn der Lochabfallbehälter voll ist. Sobald
der Lochabfallbehälter voll ist, erscheint auf der LCD-Anzeige die
Meldung „LO-ABF-B. VOLL“ (Lochabfallbehälter voll). Auf der
Bedieneroberfläche des Druckers wird ebenfalls eine entsprechende
Meldung angezeigt. Wenn die Meldung „Lochabfallbehälter voll“
angezeigt wird, den Lochabfallbehälter mit beiden Händen ganz
herausziehen. Nach dem Leeren, den Behälter wieder einschieben
dadurch wird die Meldung „Lochabfallbehälter voll“ gelöscht.

Table of Contents

Other manuals for GBC AdvancedPunch Pro

Related product manuals