EasyManua.ls Logo

GBC AdvancedPunch Pro - Page 76

GBC AdvancedPunch Pro
92 pages
Print Icon
To Next Page IconTo Next Page
To Next Page IconTo Next Page
To Previous Page IconTo Previous Page
To Previous Page IconTo Previous Page
Loading...
76
RU
AdvancedPunch
TM
Pro
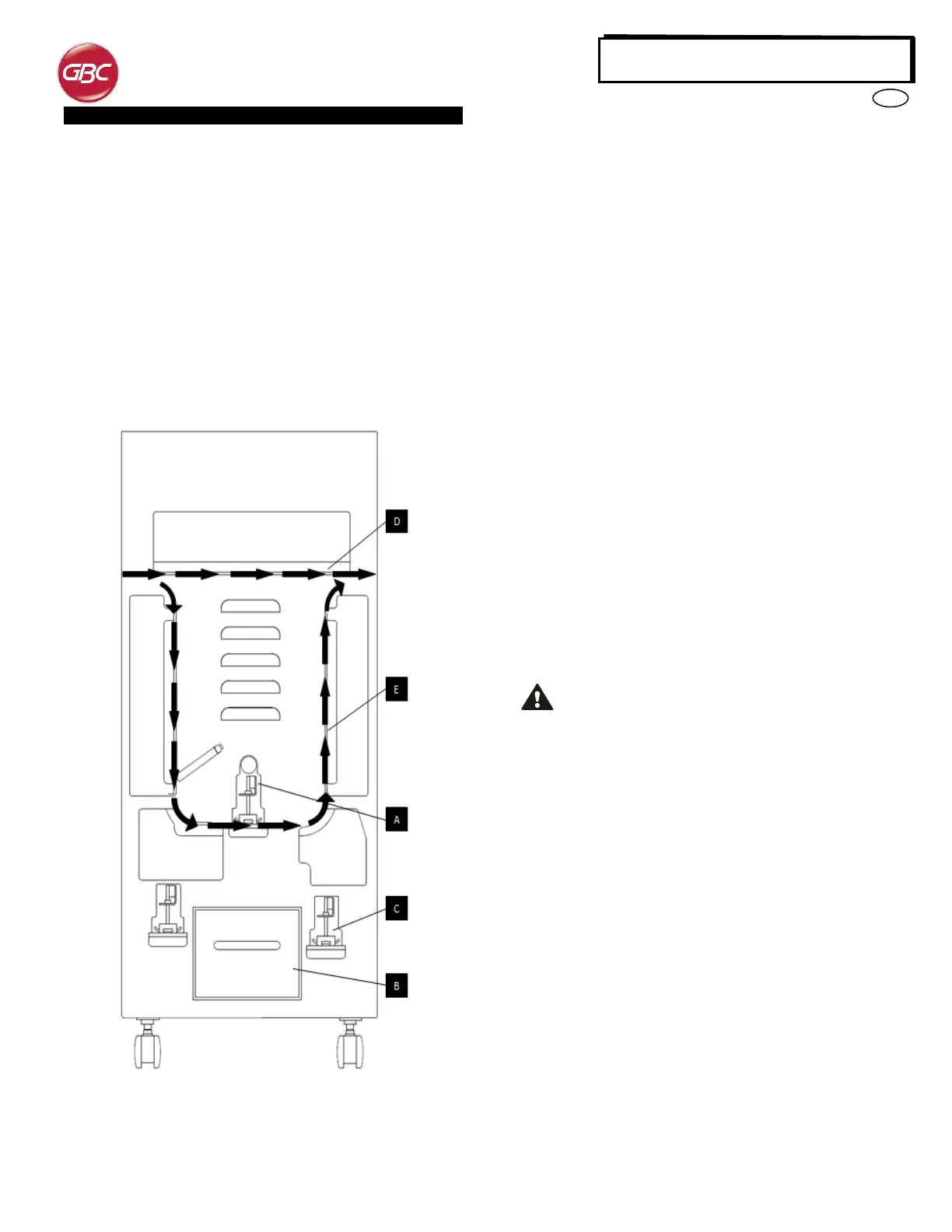
4. ОБСЛУЖИВАНИЕ ПОЛЬЗОВАТЕЛЕМ
A. Смена штампов:
Выполняется за считанные секунды без применения
инструментов.
B. Контейнер для отходов:
Легко вынимется для быстрого удаления отходов
перфорации.
C. Хранилище штампов:
Вмещает до 2 запасных штампов.
D. Обходной путь:
Короткий прямой путь для вывода бумаги без проведения.
E. Путь режима перфорации:
Большой радиус закругления поддерживает бумагу
плотностью до 300g/m
2
(обложка).
Путь движения бумаги и обслуживаемые пользователем части
перфоратора AdvancedPunch Pro
A. Смена штампов:
Аппарат AdvancedPunch Pro имеет набор сменных штампов, что
позволяет выполнять перфорацию документов под различные
стили переплета. Это удобно и экономично. Смена штампов
происходит быстро и легко, согласно следующими инструкциям:
Примечание: Подробные инструкции по установке штампов см.
Раздел 8 - Руководство по установке штампов.
Извлечение штампов из машины: Полка для сменных
комплектов матриц перфоратора AdvancedPunch Pro расположена
рядом с контейнером отходов перфорации в нижней части
перфоратора.
Шаг 1: Остановите принтер/копир.
Шаг 2: Откройте дверцу для обслуживания на AdvancedPunch
Pro.
Шаг 3: Прочно взяться за фиксирующую рукоятку матрицы и
повернуть ее против часовой стрелки, как показано на
пиктограмме рядом с фиксирующей рукояткой. Таким образом
происходит освобождение матрицы из запертого положения.
Шаг 4: Полностью выдвиньте штамп из машины, удерживая
его обеими руками.
Шаг 5: Хранение извлеченного матричного комплекта
производить надлежащим образом в месте для хранения
комплектов матриц. (не допуская попадания грязи и пыли,
случайных падений с рабочих поверхностей и т.д.).
Шаг 6: Выберите нужный штамп для следующего задания и
вставьте его в гнездо для штампа. Надавите на штамп, чтобы
ограничитель на штампе уперся в круглый магнит. Это важно
для обеспечения правильного положения штампа.
Шаг 7: Взяться за рукоятку и повернуть ее по часовой стрелке
до полного зацепления защелки, как показано на пиктограмме.
ОСТОРОЖНО: СУЩЕСТВУЕТ ОПАСНОСТЬ
ЗАЩЕМЛЕНИЯ. ПРИ УСТАНОВКЕ ШТАМПА В АППАРАТ
ADVANCEDPUNCH PRO ВСЕГДА ДЕРЖИТЕ ПАЛЬЦЫ И
ПРОЧИЕ ЧАСТИ ТЕЛА ПОДАЛЬШЕ ОТ ГНЕЗДА ШТАМПА
И ВСЕХ ЧАСТЕЙ ШТАМПА, ЗА ИСКЛЮЧЕНИЕМ
ОТВЕРСТИЯ ДЛЯ ПАЛЬЦА. НЕСОБЛЮДЕНИЕ ЭТИХ МЕР
ПРЕДОСТОРОЖНОСТИ МОЖЕТ ПРИВЕСТИ К ТРАВМЕ.
Шаг 8: Закройте дверцу доступа.
Шаг 9: Включите режим перфорации и приступите к
выполнению задания на печать и перфорацию.
Обратите внимание, что при использовании нового штампа может
появляться масло на листах возле перфорации. После
перфорации 25-50 листов штамп больше не будет пачкать листы
маслом. После установки нового или недавно смазанного штампа
рекомендуется провести короткую пробную печать.
B. Контейнер для отходов:
Сборник отходов перфорации на AdvancedPunch Pro расположен
спереди, в нижней части машины. Контейнер следует
периодически вынимать и освобождать. В перфораторе
AdvancedPunch Pro имеется датчик заполнения контейнера для
отходов. При заполнении контейнера на ЖК-дисплее машины а
также в экране пользовательского интерфейса принтера
отображается сообщение «Контейнер заполнен». При появлении
сообщения «Переполнен контейнер отходов», выдвинуть и, держа
обеими руками, полностью снять контейнер отходов. Опорожнив
контейнер, установить его на место, при этом сообщение
«Переполнен контейнер отходов» погаснет.

Table of Contents

Other manuals for GBC AdvancedPunch Pro

Related product manuals