EasyManua.ls Logo

GE AKD-10 - Page 51

GE AKD-10
66 pages
Print Icon
To Next Page IconTo Next Page
To Next Page IconTo Next Page
To Previous Page IconTo Previous Page
To Previous Page IconTo Previous Page
Loading...
50
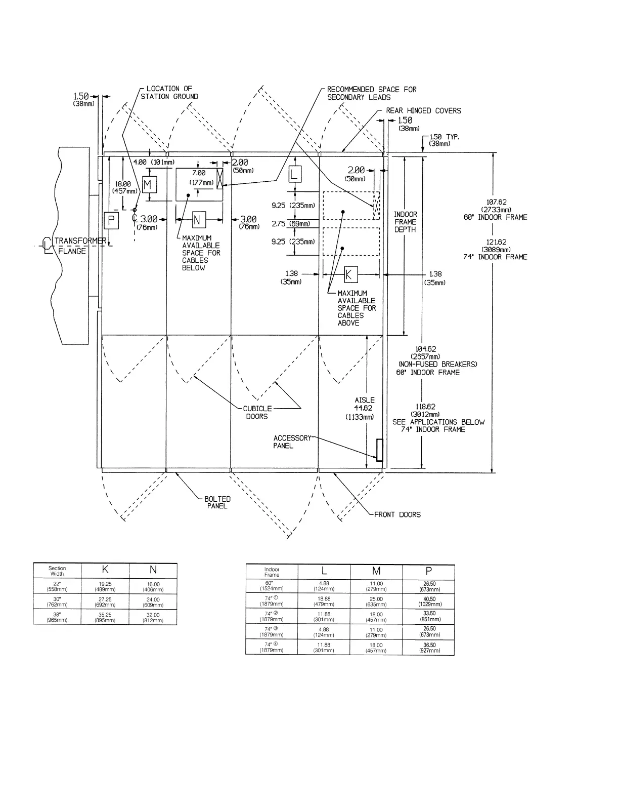
NEMA 3R outdoor, walk-in protected aisle — floor plan and cable space details
Note: Refer to installation drawing and AKD-10 switchgear installation manual (DEH-194) for additional information
À
Non-fused breakers (14" rear extension)
Á
W
ith WPF-08/16 (7" r
ear extension)
®
W
ith 5000 Amp Main Bus and WPS/WPX-50
¯
5000 Amp Bus w/o WPS/WPX-50 and w/o WPF-08/16 (7" rear extension)
R
efer to T
able 32.1 and 32.2 for equipment depth options.

Related product manuals