EasyManua.ls Logo

GE AKD-10 - Page 50

GE AKD-10
66 pages
Print Icon
To Next Page IconTo Next Page
To Next Page IconTo Next Page
To Previous Page IconTo Previous Page
To Previous Page IconTo Previous Page
Loading...
49
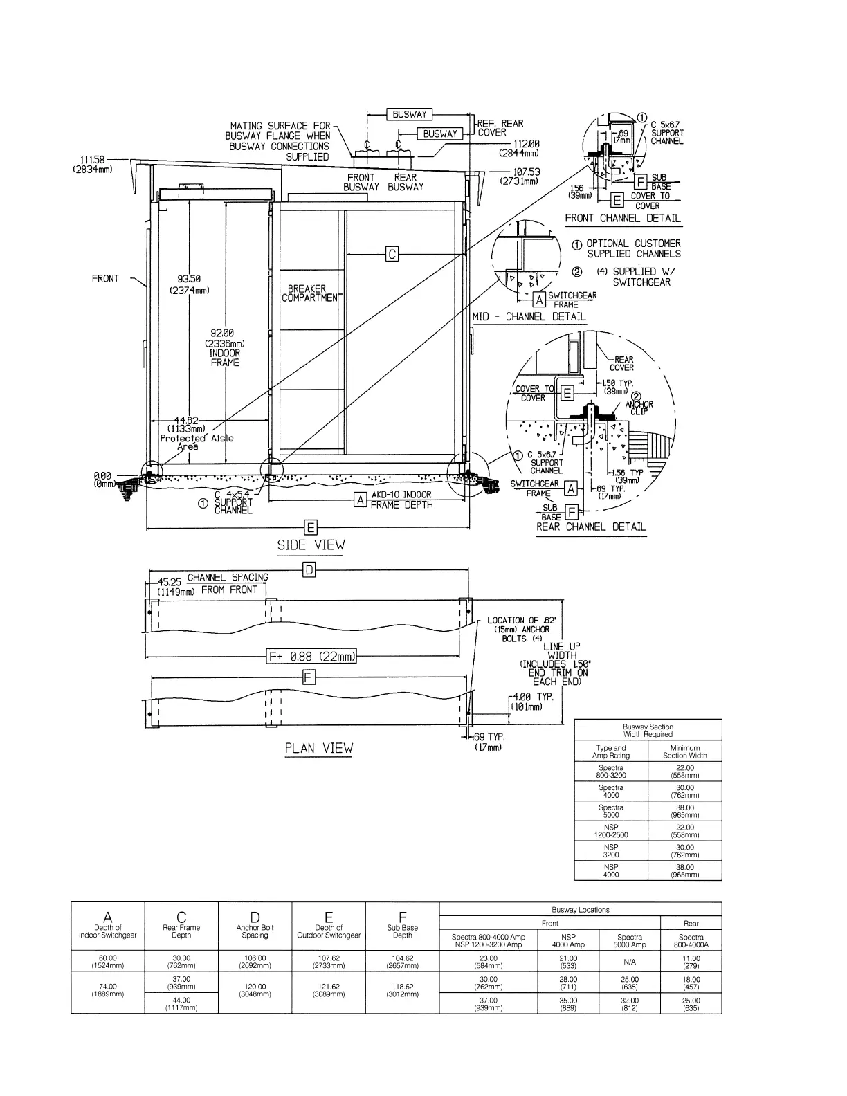
Refer to Table 32.1 and 32.2 for equipment depth options.
NEMA 3R outdoor, walk-in protected aisle — side view and anchoring details
Note: Refer to installation drawing and AKD-10 switchgear installation manual (DEH-194) for additional information

Related product manuals