EasyManua.ls Logo

GE AKD-10 - Page 49

GE AKD-10
66 pages
Print Icon
To Next Page IconTo Next Page
To Next Page IconTo Next Page
To Previous Page IconTo Previous Page
To Previous Page IconTo Previous Page
Loading...
48
À
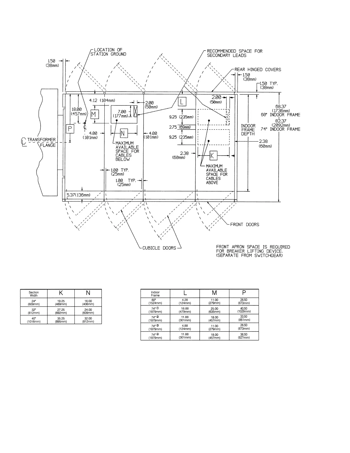
Non-fused breakers (14" rear extension)
Á
W
ith WPF-08/16 (7" r
ear extension)
®
With 5000 Amp Main Bus and WPF-08/WPF-16
¯
5000 Amp Bus w/o WPS/WPX-50 and w/o WPF-08/16 (7" rear extension)
R
efer to T
able 32.1 and 32.2 for equipment depth options.
NEMA 3R outdoor, non-walk-in — floor plan and cable space details
Note: Refer to installation drawing and AKD-10 switchgear installation manual (DEH-194) for additional information

Related product manuals