EasyManua.ls Logo

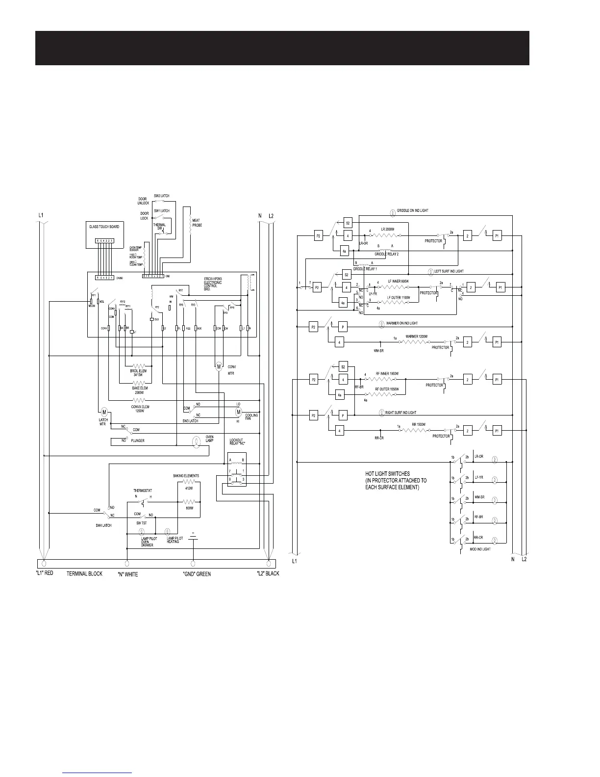
GE Cafe CS980SN1SS - Electrical Schematic Diagram

GE Cafe CS980SN1SS
25 pages
Print Icon
To Next Page IconTo Next Page
To Next Page IconTo Next Page
To Previous Page IconTo Previous Page
To Previous Page IconTo Previous Page
Loading...
– 24 –
WARNING: Disconnect electrical power before servicing.
Caution: Label all wires prior to disconnection. Wiring errors can cause improper and dangerous operation.
Verify operation after servicing.
Schematic
Schematic Diagram

Related product manuals