EasyManua.ls Logo

GE LM10 - Page 22

GE LM10
106 pages
Print Icon
To Next Page IconTo Next Page
To Next Page IconTo Next Page
To Previous Page IconTo Previous Page
To Previous Page IconTo Previous Page
Loading...
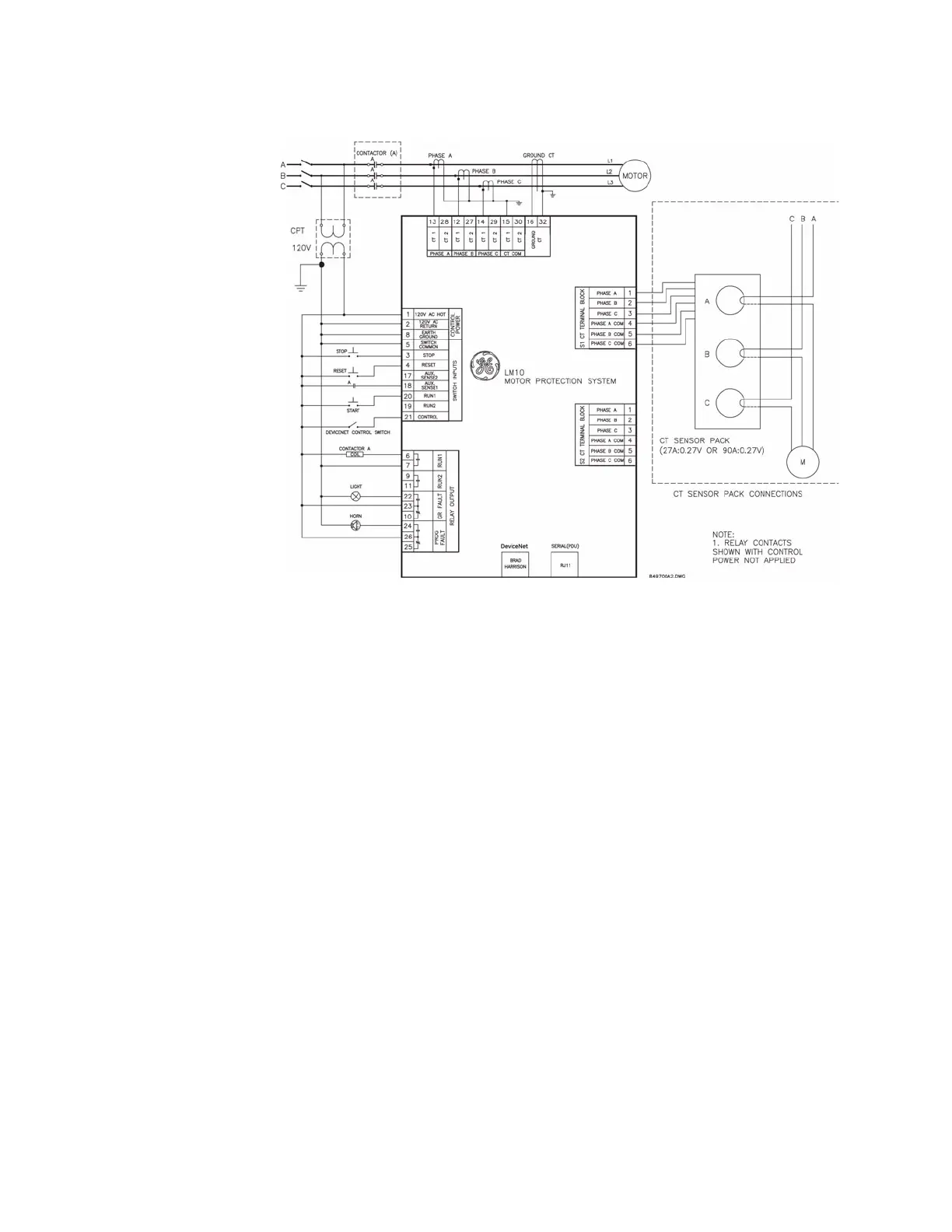
2–16 LM10 MOTOR PROTECTION SYSTEM – INSTRUCTION MANUAL
WIRING CHAPTER 2: INSTALLATION
FIGURE 2–4: LM10 Wiring Diagram

Table of Contents

Related product manuals