EasyManua.ls Logo

GE LM10 - Mounting; Lm10 Mounting

GE LM10
106 pages
Print Icon
To Next Page IconTo Next Page
To Next Page IconTo Next Page
To Previous Page IconTo Previous Page
To Previous Page IconTo Previous Page
Loading...
CHAPTER 2: INSTALLATION MOUNTING
LM10 MOTOR PROTECTION SYSTEM – INSTRUCTION MANUAL 2–17
2.2 Mounting
2.2.1 LM10 Mounting
Three mounting options are available.
1. The relay has four holes in the back to allow securing to a mounting plate with screws
by others.
2. When mounted in a GE Evolution Series E9000 Motor Control Center, a mounting
bracket (provided separately by GE) has been designed to suspend the LM10 base unit
inside the MCC bucket. To install, first remove the plastic mounting plate from the
LM10.
3. Front door mounting feature (see PDU Door Mount on page 2–18).
MCC hint: Grasp the bottom of the LM10 in one hand, and slide in opposite directions to
detach. Attach the mounting plate to the bracket provided using four (4) screws (not
included). Once the mounting bracket and plate are installed, slide the LM10 base unit back
onto the plate.
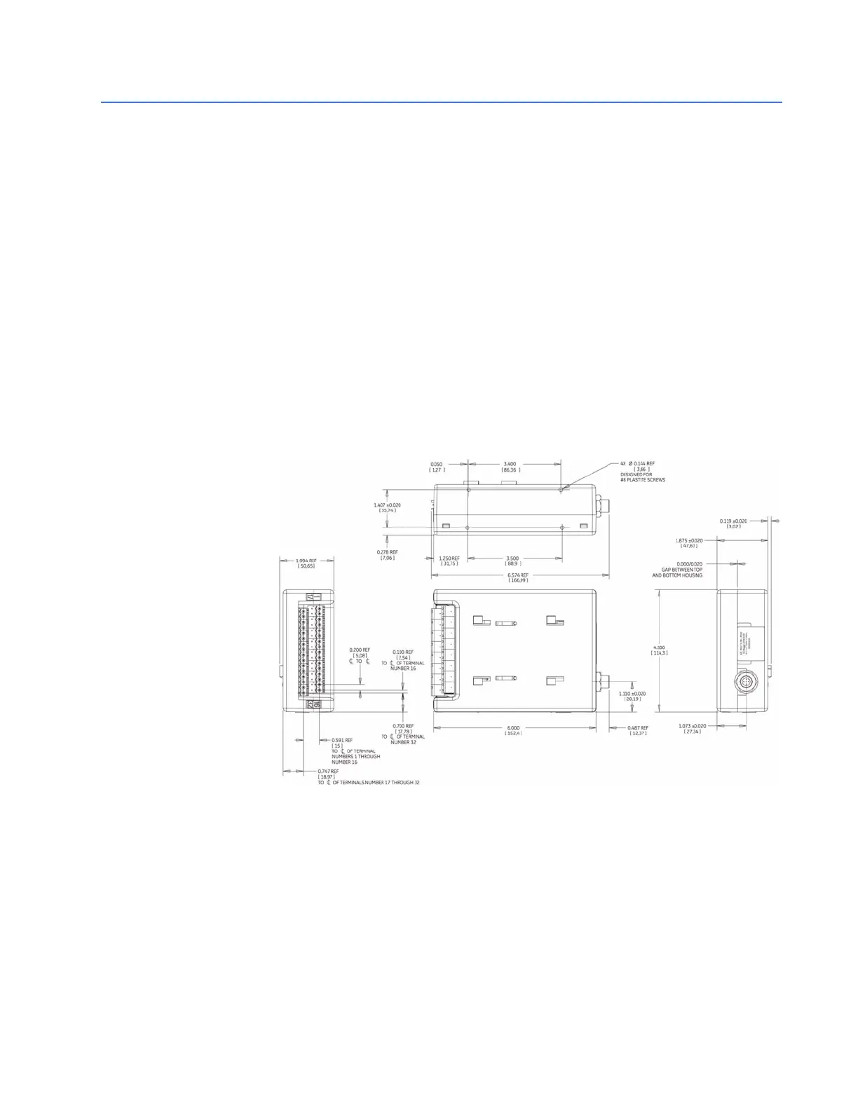
FIGURE 2–5: LM10 Base Unit Dimensions

Table of Contents

Related product manuals