EasyManua.ls Logo

Generac Power Systems PWRcell M3 - Commissioning the System; General Commissioning Information; Commissioning Procedure and Configuration

Generac Power Systems PWRcell M3
44 pages
To Next Page IconTo Next Page
To Next Page IconTo Next Page
To Previous Page IconTo Previous Page
To Previous Page IconTo Previous Page
Loading...
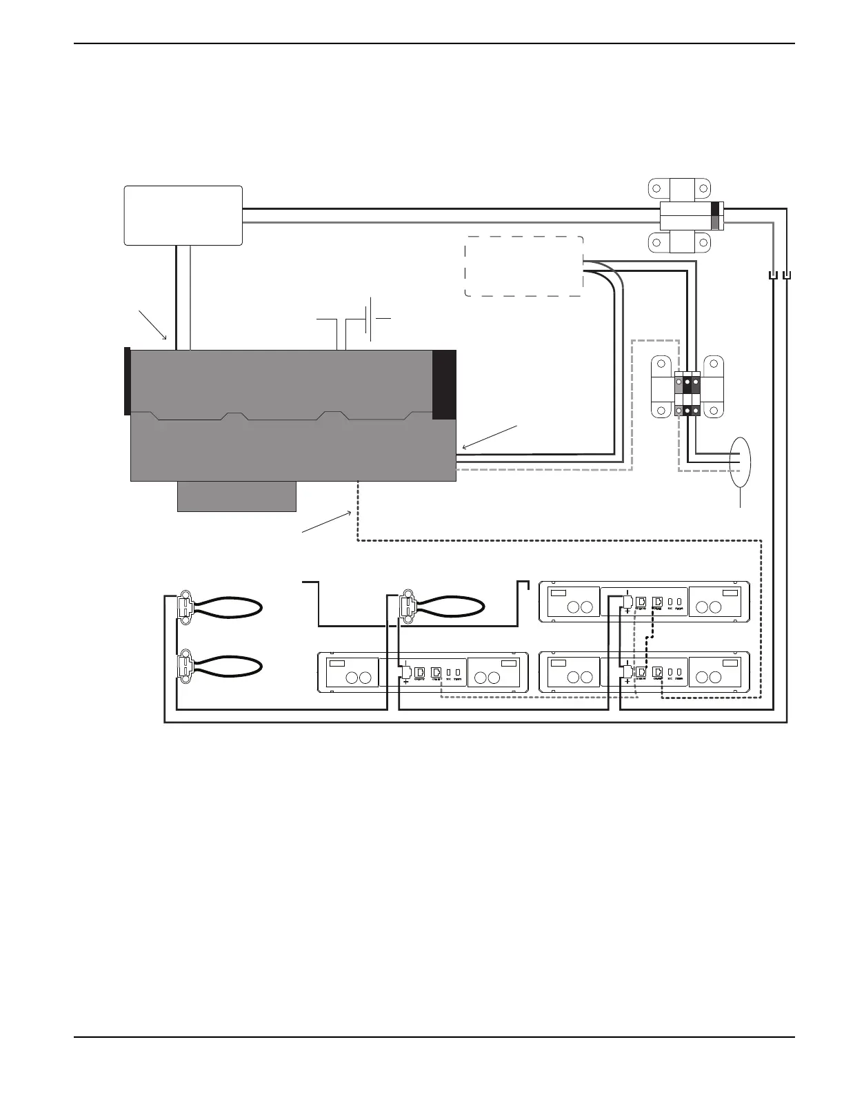
Wiring Diagrams
Installation Manual for Generac PWRcell Battery 33
Section 6: Wiring Diagrams
PWRcell M3
009945
Contactors
REbus 380v DC
REbus cable entrance
GRB
I/O Switch
Black-start battery
Snubber
Battery String
DC
BLACK
RED
Module Cat 5 COMs Cable
Top
Back
Front
Module 3
Module 2
Module 1
Module Spacer
009945

Table of Contents

Other manuals for Generac Power Systems PWRcell M3

Related product manuals