EasyManua.ls Logo

Genie S-60X - Deutz Engine Models (ANSI; CSA); Deutz Engine Models (ANSI;CSA); S60 Trax;S65 Trax

Genie S-60X
461 pages
Print Icon
To Next Page IconTo Next Page
To Next Page IconTo Next Page
To Previous Page IconTo Previous Page
To Previous Page IconTo Previous Page
Loading...
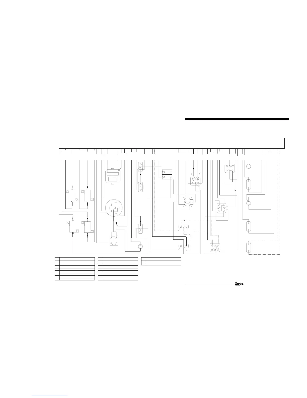
Section 6 • SchematicsDecember 2013
1
2
3
4
5
6
7
8
NM L K J IHGFEDCBA
Part No. 147753 S-60 • S-65 • S-60 TRAX • S-65 TRAX 6 - 53
S-60 HC • S-60X • S-60XC
Ground Control Box Switch Panel Wiring Diagram, S-65
S60 TRAX/S65 TRAX
Deutz Engine Models (ANSI / CSA)
Deutz D2011L03i Engine
Deutz TD2011L04i Engine
R4
WH/RD
RD
R14
R2
R16
RD/WH
WH/RD
BK/WH-TB34D
+
+
P4
NO
3
4
WH-KS1-1
WH-TS51-2
RD-P1-2
BR-GND STUD
BR-L46(-)
BR-HM(-)
BR-CR34#85
RD-TS51-1
RD-TS61-2
RD-R14
WH-TB23D
OR-TB14D
OR/BK-TB15D
GR/BK-TB18D
RD-TB24D
RD-TB27D
BK/RD-TB9D
BK/WH-TB8D
BK-TB7D
WH/RD-R2
WH/BK-TB5D
WH-TB4D
RD/WH-R16
RD/BK-TB2D
RD-TB1D
BL/BK-TB59D
BK-TB22D
WH-TB21D
RD-TB20D
BK-TB33D
BK/RD-TB35D
BL-TB44D
WH/RD TS62-6
RD TS62-4
WH/RD-TB26
TO GROUND
CONTROL BOX
CONNECTIONS
GR-TB17D
RD-TB20C
RD-C6-33
RD-TB20C
RD/WH-CR34#87A
WH/RD-R4
GR/WH-TB19D
L46
LED - CABLE TENSION
L2 LED - CHECK ENGINE
TS59 PLATFORM LEVEL UP / DOWN TOGGLE SWITCH
HIGH IDLE CIRCUIT BREAKER
TS61 PRIMARY BOOM UP / DOWN TOGGLE SWITCH
TS62 TURNTABLE ROTATE TOGGLE SWITCH
TS58
JIB BOOM UP / DOWN TOGGLE SWITCH (S-65 OPTION)
TS51
TS52
TS54
AUXILIARY PUMP TOGGLE SWITCH
ENGINE START TOGGLE SWITCH
HIGH IDLE RELAY
HORN RELAY
IGNITION / FUEL RELAY
START RELAY
HYDRAULIC OIL COOLER RELAY (OPTION)
TURNTABLE SPEED REDUCTION RELAY
PRIMARY BOOM SPEED REDUCTION RELAY
P1 EMERGENCY STOP BUTTON
P4
R2
R4
RD/WH-CR34#87
RD TS61-2
WH/RD-CR19#87
WH/RD-CR19#87A
NO
3
4
RD/WH-TS61-3
RD-CB2-1
RD-L45(+)
RD-C134D
P1
NC
NC
1A
1B
2A
2B
D2
KS1
B1
B
1
2 4
3
G6
D64
32 1
TS52
TS56
123
TS54
D13
123
L2
TS59
3
1
2
TS58
3
1
2
D28
TS63
3
6
1
4
TS61
36
14
D3
TS57
3
1
6
4
TS62
3
6
1
4
D4
TS51
3
1
6
4
CB2
12
L46
CB1
12
CB3
12
COMPONENT INDEX - GROUND CONTROLS
CB1
CB2
CB3
CB7
CR1
CR2
CR4
CR5
CR17
CR19
CR34
ENGINE CIRCUIT BREAKER, 15A
CONTROLS CIRCUIT BREAKER, 15A
CIRCUIT BREAKER, 15A (OPTION)
G6 HOUR METER
KS1 KEY SWITCH
FUNCTION ENABLE SWITCH
RESISTOR, 5 , TURNTABLE ROTATE SPEEDW
RESISTOR, 7.5 , TURNTABLE ROTATE SPEEDW
RPM SELECT TOGGLE SWITCH
ES0186U
NOTE: DASHED LINES INDICATE OPTIONS.
IGNITION START MODULEU1
PRIMARY BOOM EXTEND / RETRACT TOGGLE SWITCHTS63
R14
RESISTOR, 10 , PRIMARY BOOM UPPER ZONE SPEEDW
R16
RESISTOR, 7.5 , PRIMARY BOOM UP / DOWN SPEEDW
TS56 GLOW PLUG TOGGLE SWITCH
TS57 PLATFORM ROTATE TOGGLE SWITCH
DRIVE LIGHTS RELAY (OPTION)
CR23
RD-TS51-5
RD-P4

Table of Contents

Other manuals for Genie S-60X

Related product manuals