EasyManua.ls Logo

GF EA21 - Page 28

GF EA21
38 pages
Print Icon
To Next Page IconTo Next Page
To Next Page IconTo Next Page
To Previous Page IconTo Previous Page
To Previous Page IconTo Previous Page
Loading...
64
Description Technical data Code
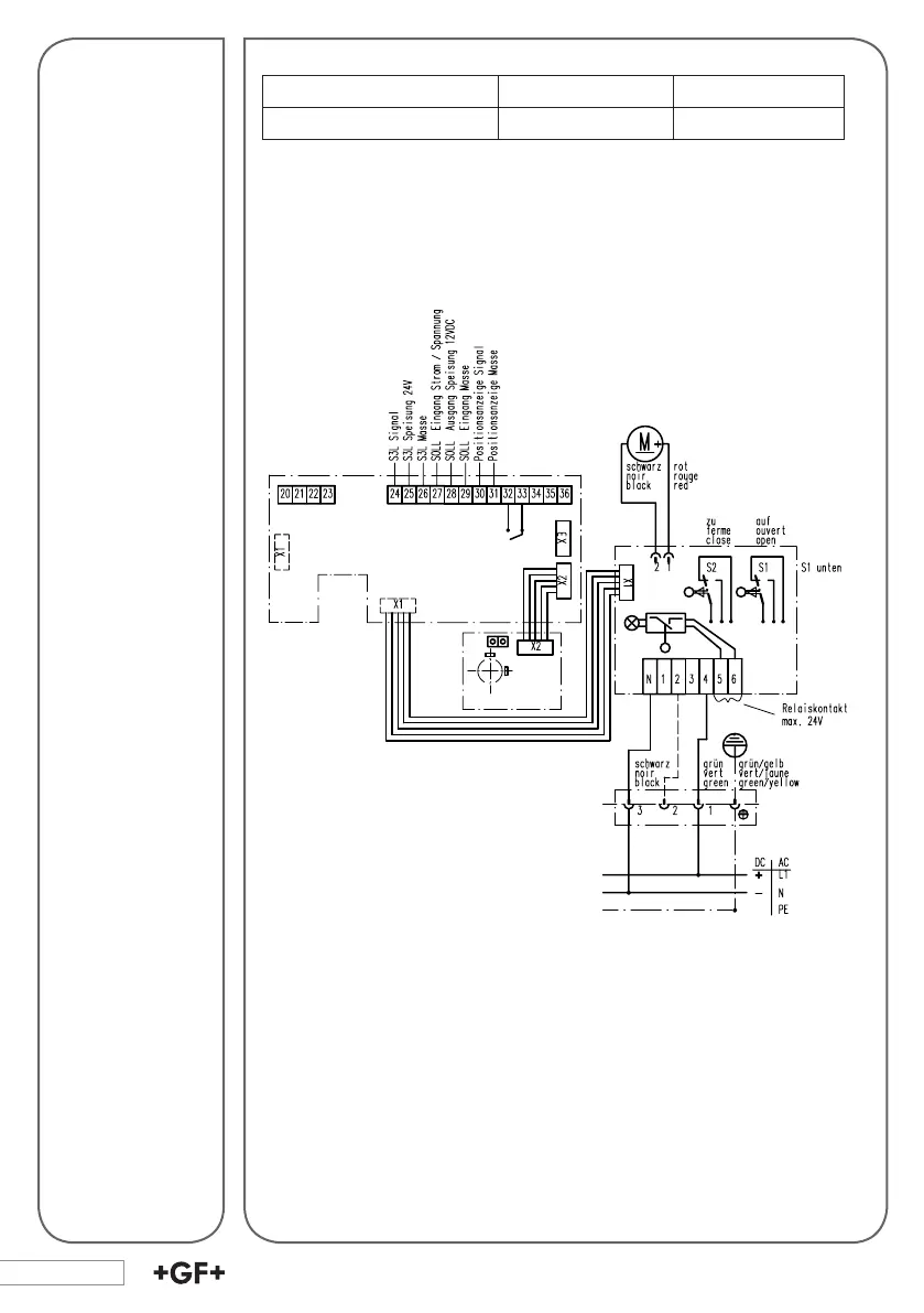
Positioner type PE 25 galvanic isolated 199 190 101
The positioner type PE 25 controls a user-dened valve position proportio-
nal to a given set value. This can be 0-10V or 4-20mA.
The return of the valve position (actual value) is realized with the position
signalization. The control parameters are pre-set ex factory and do not
need to be changed.
The return of the valve position (actual value) is realized with the position
signalization.
The control parameters are pre-set ex factory and do not need to be chan-
ged.

Related product manuals