EasyManua.ls Logo

Globaljig Quick Pull - Page 31

Default Icon
37 pages
Print Icon
To Next Page IconTo Next Page
To Next Page IconTo Next Page
To Previous Page IconTo Previous Page
To Previous Page IconTo Previous Page
Loading...
31
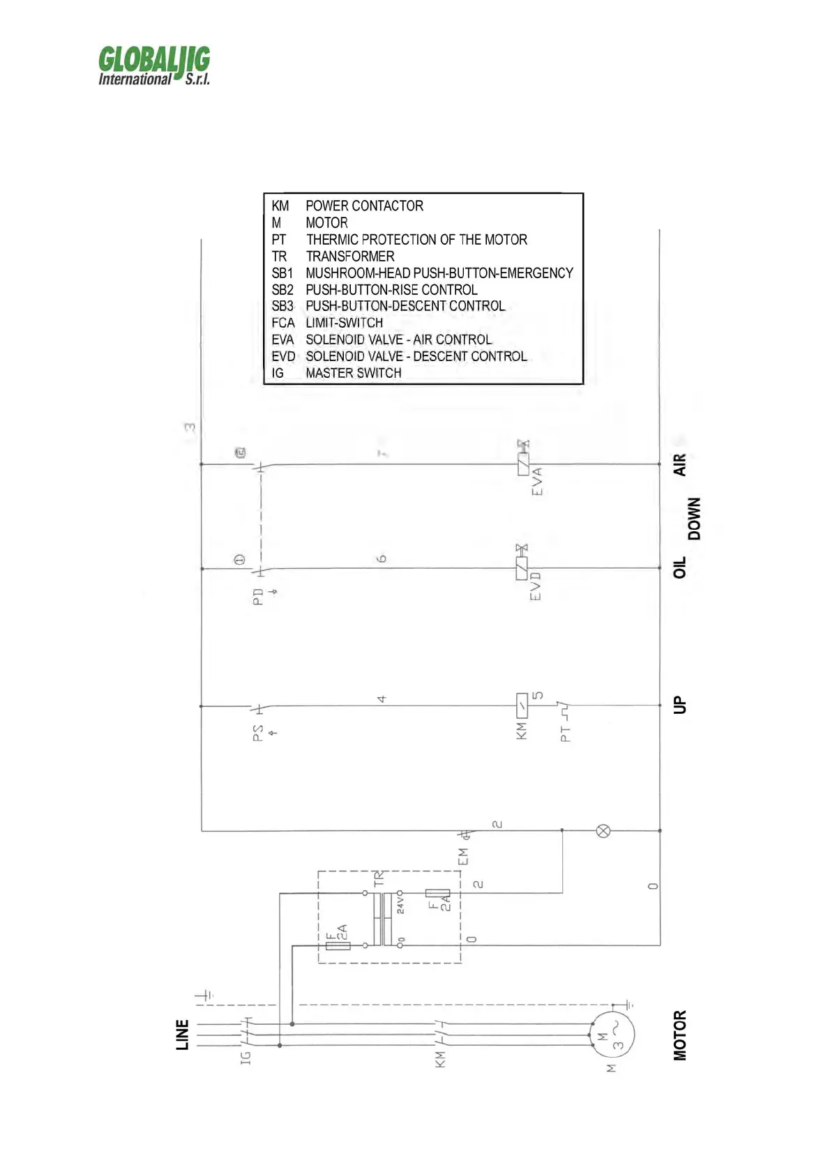
ELECTRICAL SYSTEM SCHEME

Related product manuals