EasyManua.ls Logo

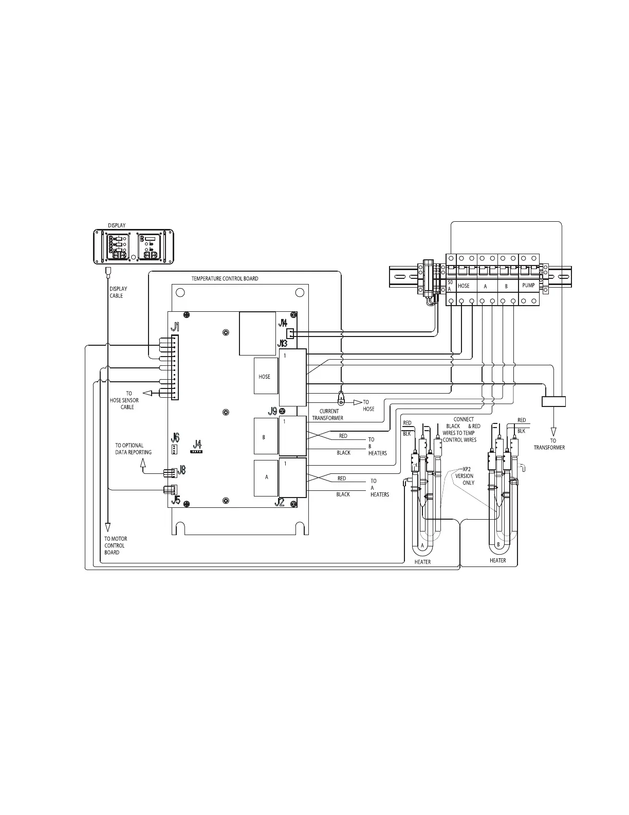
Graco REACTOR E-30 - Simplified Schematic, Heater Controls

Graco REACTOR E-30
10 pages
Print Icon
To Next Page IconTo Next Page
To Next Page IconTo Next Page
To Previous Page IconTo Previous Page
To Previous Page IconTo Previous Page
Loading...
Simplified Schematic, Heater Controls
309731E 3
Simplified Schematic, Heater Controls
230Vac, 3 Phase
TI4198b

Other manuals for Graco REACTOR E-30

Related product manuals