EasyManua.ls Logo

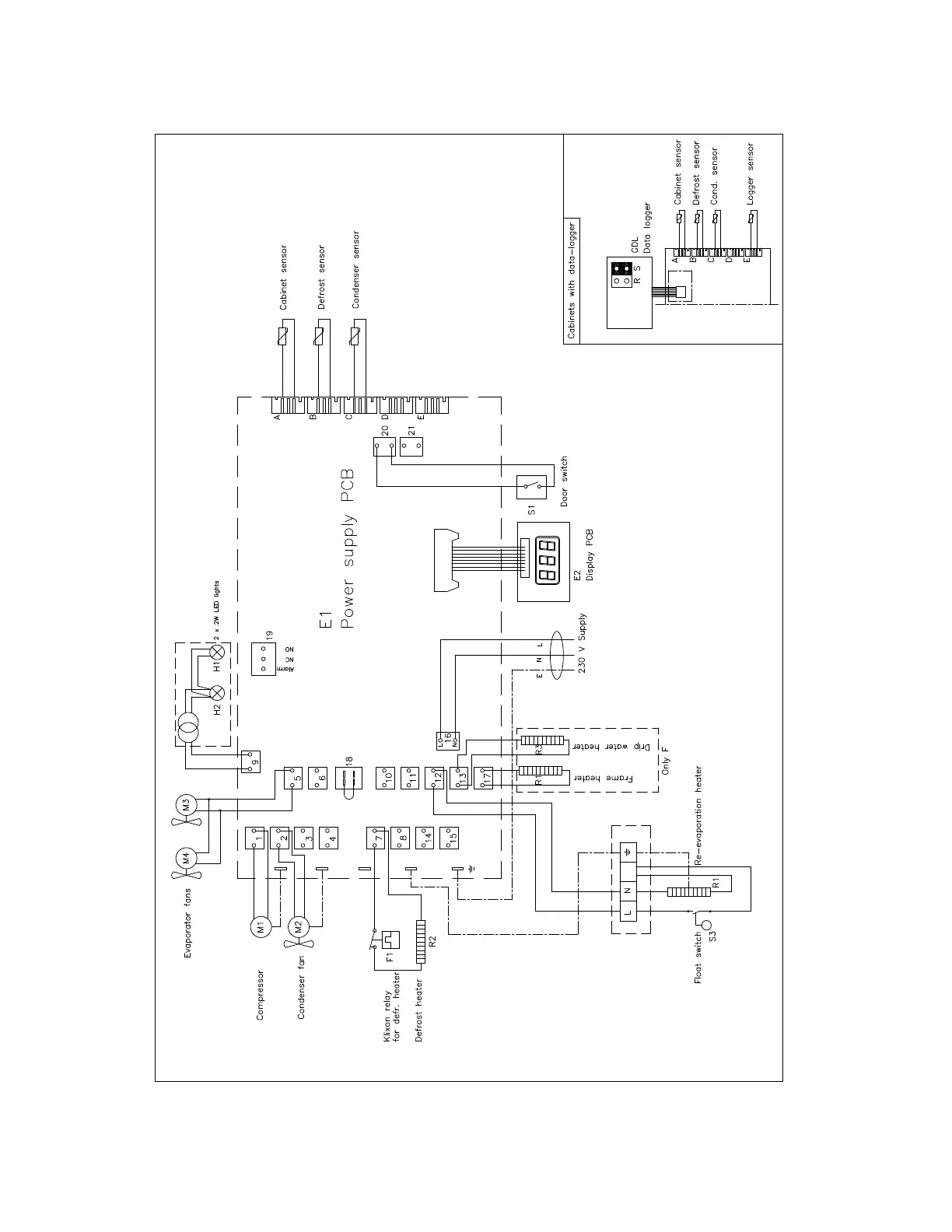
Gram BAKER M 950 - Wiring Diagram

Gram BAKER M 950
32 pages
Print Icon
To Next Page IconTo Next Page
To Next Page IconTo Next Page
To Previous Page IconTo Previous Page
To Previous Page IconTo Previous Page
Loading...
765041776 Rev. 006 29
Wiring diagram

Related product manuals