EasyManua.ls Logo

GRAND EFFECTS FBBRPCON30 - Page 9

GRAND EFFECTS FBBRPCON30
24 pages
Print Icon
To Next Page IconTo Next Page
To Next Page IconTo Next Page
To Previous Page IconTo Previous Page
To Previous Page IconTo Previous Page
Loading...
Fire Bowls and Inserts Premium Line
Automated Operation
Page 9
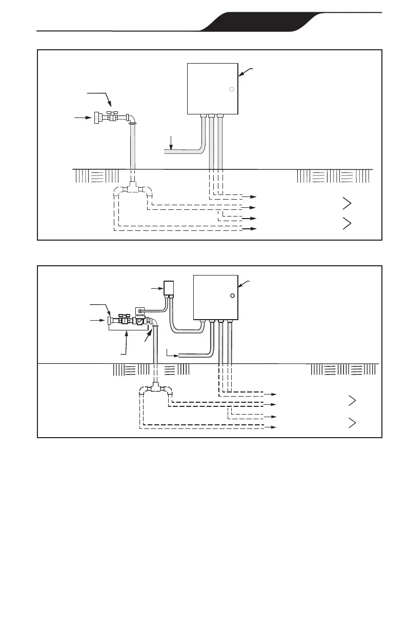
GAS INLET
CONNECTION
MANUAL GAS
VALVE
120 VAC 60HZ INPUT
TO CONTROL PANEL
CONTROL PANEL
(TYPICALLY MOUNTED WITH
POOL EQUIPMENT UP TO 150 FEET
FROM BURNER)
12 VAC & CONDUIT (UNDERGROUND)
3/4” GAS PIPING (UNDERGROUND)
12 VAC & CONDUIT (UNDERGROUND)
BOWL #1
BOWL #2
3/4” GAS PIPING (UNDERGROUND)
GAS OUTLET
Figure 3. Natural Gas
CONTROL PANEL
(TYPICALLY MOUNTED WITH
POOL EQUIPMENT)
GAS INLET
(PROPANE)
GAS
OUTLET
12 VAC & CONDUIT (UNDERGROUND)
3/4” GAS PIPING (UNDERGROUND)
12 VAC & CONDUIT (UNDERGROUND)
BOWL #1
BOWL #2
3/4” GAS PIPING (UNDERGROUND)
GAS OUTLET
PROPANE ADDER
SUPPLIED BY GRAND EFFECTS
120 VAC 60HZ INPUT
TO CONTROL PANEL
MANUAL GAS
VALVE
JUNCTION BOX
12 VAC
12 VAC
Figure 4. Propane Gas

Related product manuals