EasyManua.ls Logo

Gree FXB5A-K - Page 85

Gree FXB5A-K
207 pages
Print Icon
To Next Page IconTo Next Page
To Next Page IconTo Next Page
To Previous Page IconTo Previous Page
To Previous Page IconTo Previous Page
Loading...
Super Free Match
Service Manual
INSTALLATION81
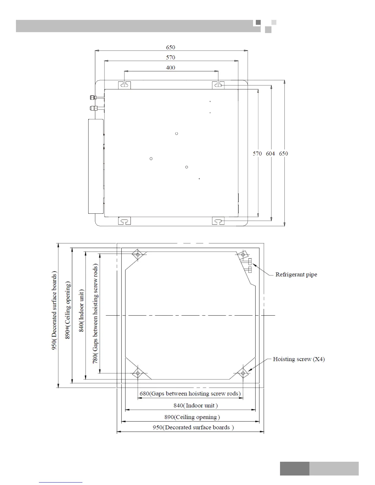
4.3.3 Outline Dimension Drawings of the Indoor Unit
GKH(12)BA-K3DNA2A/I; GKH(18)BA-K3DNA2A/I
GKH(12)BA-K3DNA1A/I; GKH(18)BA-K3DNA1A/I; GKH(24)BA-K3DNA1A/I

Table of Contents

Related product manuals