EasyManua.ls Logo

Gree FXB5A-K - Page 86

Gree FXB5A-K
207 pages
Print Icon
To Next Page IconTo Next Page
To Next Page IconTo Next Page
To Previous Page IconTo Previous Page
To Previous Page IconTo Previous Page
Loading...
Super Free Match
Service Manual
INSTALLATION
82
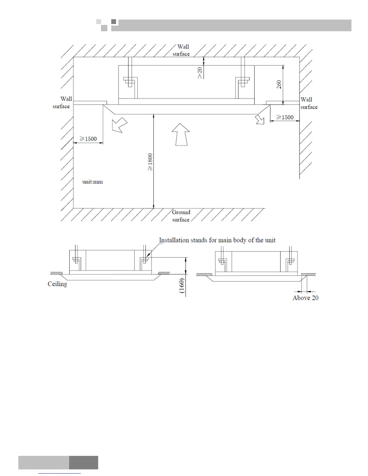
4.3.4 Installation and Servicing Space
The drilling of holes in the ceiling must be done by the professional personnel.
4.3.5 Installation of the Indoor Unit
1) The primary step for install the indoor unit.
When attach the hoisting stand on hoisting screw, do use nut and gasket individually at the upper and
lower of the hoisting stand to fix it. The use of gasket anchor board can prevent gasket break off.
2) Use install cardboard
Please refer to the install cardboard about the dimension of ceiling opening.
The central mark of the ceiling opening is marked on the install cardboard.
Install the install cardboard on the unit by bolt (3 piece), and fix the angle of the drainage pipe at the
outlet vent by bolt.
3) Adjust the unit to the suitable install place.
4) Check if the unit is horizontal.
Inner drainage pump and bobber switch are included in the indoor unit, check if 4 angle of every unit
are horizontal by water lever. (If the unit is slant toward the opposite of the coagulate water flow, there
may be malfunction of the bobber switch and lead water drop.)
5) Backout the gasket anchor board used to prevent gasket break off and tighten the nut on it.

Table of Contents

Related product manuals