EasyManua.ls Logo

Grizzly G1022PRO - Rabbet Operations

Grizzly G1022PRO
72 pages
Print Icon
To Next Page IconTo Next Page
To Next Page IconTo Next Page
To Previous Page IconTo Previous Page
To Previous Page IconTo Previous Page
Loading...
-40- G1022 Series Contractor Saws
Dadoing operations can also be accomplished
using a conventional saw blade. To create a sin-
gle-blade dado:
1. Clearly mark the width of the dado cut on
your workpiece. Include marks on the edge
of your workpiece so you can clearly identify
your intended cut while the material is laying
flat on the saw table.
2. Set the blade height to the depth of cut you
wish to create.
3. If the dado runs the length of the material,
adjust the fence so the blade is aligned with
the inside of your dado channel as shown in
Figure 57B.
4. Turn on your saw and make the first cut.
Figure 57B. Single-blade dado cut.
Figure 58. Sacrificial fence.
5. Turn off the saw and readjust the fence so
the blade is aligned with the other edge of
the intended dado channel. Be sure to keep
the cuts within your marks; otherwise, your
dado will be too large.
6. Turn on the saw and make a second cut.
7. Move toward the center of the dado with your
subsequent cuts until the dado is complete.
8. Re-install the blade guard.
In addition to its ability to create a variety of
dadoes, this table saw can be used to cut L-
shaped rabbets. These cuts can be created with
a regular saw blade or with specially-designed
stacking or wobbling dado blades (Figure 57).
Proper rabbet operation will differ depending on
the blade system you choose. Consult the
instructions included with your dado blades for
directions regarding attachment and adjustment.
To use a dado blade for rabbeting operations:
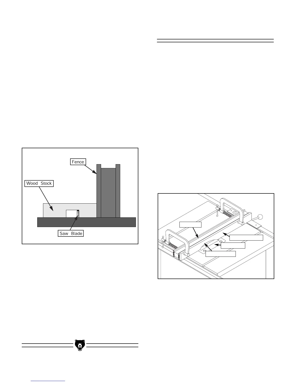
1. Rabbet cutting on the edge of a piece of
stock requires the use of a sacrificial fence
attachment as shown in Figure 58. The
sacrificial fence can be made from a piece
of wood that is as long as the metal fence
and
3
4" thick. Once the sacrificial fence has
been cut, attach it to the metal fence with
screws or clamps, making sure they are all
secure and tight.
Rabbet Operations
Rip Fence
Sacrificial Fence
Dado Insert
Blade Cut-Out

Related product manuals