EasyManua.ls Logo

Grundfos DDI 150-4

Grundfos DDI 150-4
632 pages
To Next Page IconTo Next Page
To Next Page IconTo Next Page
To Previous Page IconTo Previous Page
To Previous Page IconTo Previous Page
Loading...
Español (ES)
110
5.2 Lugar de instalación
5.2.1 Espacio necesario para el funcionamiento y
mantenimiento
Los elementos de control deben ser fácilmente accesibles
durante el funcionamiento.
Las tareas de mantenimiento en el cabezal dosificador y
las válvulas deben llevarse a cabo regularmente.
Asegúrese de que haya espacio suficiente para retirar el cabezal
dosificador y las válvulas.
5.2.2 Influencias ambientales permitidas
Temperatura ambiente permitida: 0 °C a +40 °C.
Humedad atmosférica permitida:
Humedad máx. relativa: 92 % (no condensante).
5.2.3 Superficie de montaje
La bomba debe montarse en una superficie plana.
5.3 Montaje
Fig. 5 Esquema de perforación
Utilice cuatro tornillos M6 para montar la bomba en el depósito
o en una consola de forma que la válvula de aspiración quede
situada en la parte inferior y la válvula de descarga en la parte
superior (la dosificación siempre fluye en sentido ascen-
dente).
5.4 Ejemplos de instalación
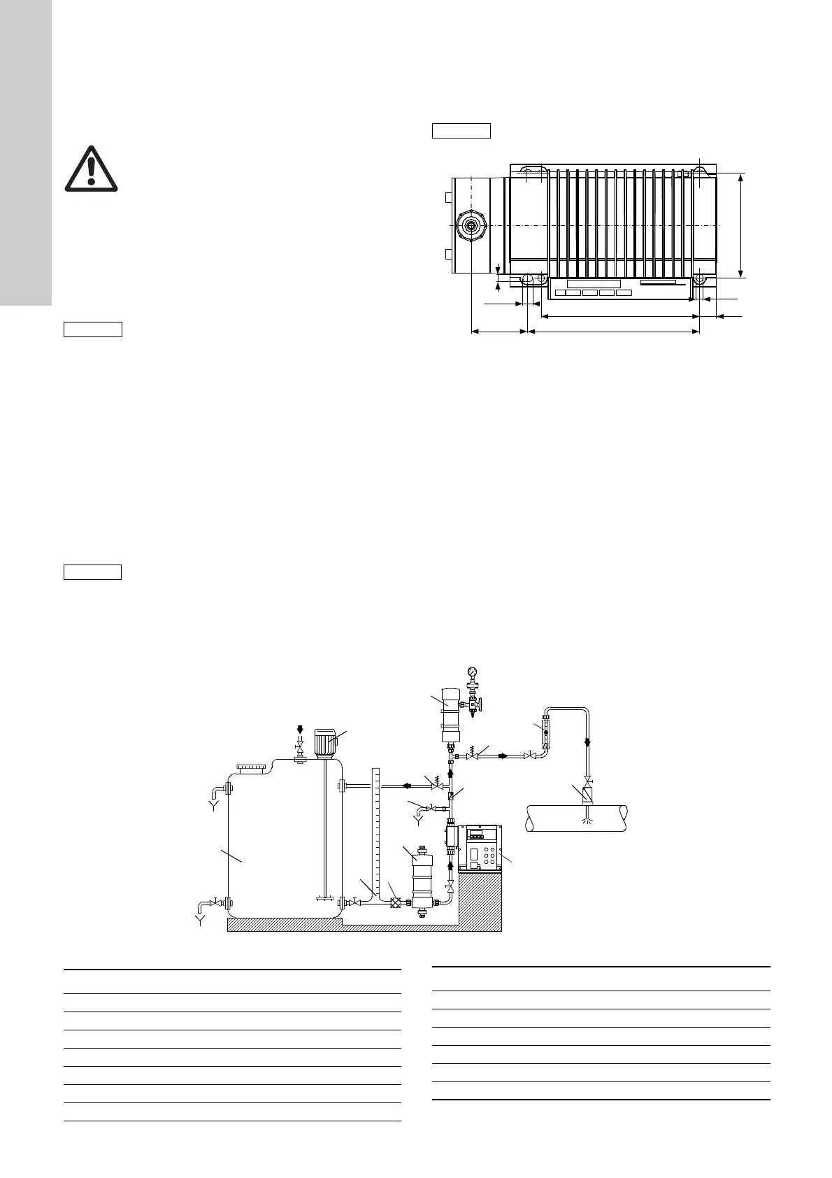
Fig. 6 Ejemplo de instalación de una bomba con purga manual
Aviso
¡Peligro de muerte debido al no-disparo del disposi-
tivo de corriente residual (RCD, por sus siglas en
inglés)!
Si la bomba está conectada a una instalación eléc-
trica dotada de un dispositivo de corriente residual
(RCD) como medio de protección complementario, el
RCD deberá dispararse cuando se produzcan deri-
vaciones a tierra con contenido de corriente directa
(corriente directa pulsante) y derivaciones a tierra de
corriente directa continua. Esto significa que debe
utilizarse un RCD de tipo B, sensible a la corriente
universal.
Nota
La bomba debe instalarse en una posición que sea
fácilmente accesible durante el funcionamiento y las
tareas de mantenimiento.
Precaución
El lugar de instalación debe estar bajo techo.
Asegúrese de que la categoría de aislamiento
del motor y la bomba no se vea afectada por
condiciones atmosféricas.
Las bombas con sistema electrónico sólo son ade-
cuadas para su uso en interiores. No las instale en
zonas exteriores.
Precaución
Apriete los tornillos suavemente, ya que, de
lo contrario, podría dañar la caja de plástico.
TM03 6664 4506
7
9.95
7
(159)
172.5
16.5
105
C1
TM03 6665 4506
1i
2i
3i
4i
5i
6i
7i
9i
10i
8i
15i
11i
12i
Pos. Componentes
1i Depósito de dosificación
2i Agitador eléctrico
3i Dispositivo de extracción
4i Amortiguador de pulsaciones de aspiración
5i Bomba dosificadora
6i Válvula de escape
7i Válvula de seguridad
8i Amortiguador de pulsaciones
9i Tubo de calibración
10i Unidad de inyección
11i Válvula de purga y evacuación.
12i Válvula de comprobación
15i Filtro
Pos. Componentes

Table of Contents

Related product manuals