EasyManua.ls Logo

Grundfos DDI 150-4

Grundfos DDI 150-4
632 pages
To Next Page IconTo Next Page
To Next Page IconTo Next Page
To Previous Page IconTo Previous Page
To Previous Page IconTo Previous Page
Loading...
Français (FR)
158
5.2 Emplacement de l'installation
5.2.1 Dégagement requis pour le fonctionnement et
la maintenance
Les éléments de commande doivent être facilement accessibles
pendant le fonctionnement.
Des travaux de maintenance doivent être effectués régulièrement
sur la tête de dosage et les soupapes.
Prévoir un dégagement suffisant pour le démontage de la tête de
dosage et des soupapes.
5.2.2 Influences ambiantes admissibles
Température ambiante admissible : de 0 °C à +40 °C.
Humidité d'air admissible : humidité relative max. :
92 % (sans condensation).
5.2.3 Surface de montage
La pompe doit être montée sur une surface plane.
5.3 Montage
Fig. 5 Schéma de perçage
Fixer la pompe sur le réservoir ou sur une console, à l'aide de
4 vis M6, de manière à ce que la soupape d'aspiration soit sur
le bas et la soupape de refoulement sur le haut (le dosage
s'écoule toujours vers le haut).
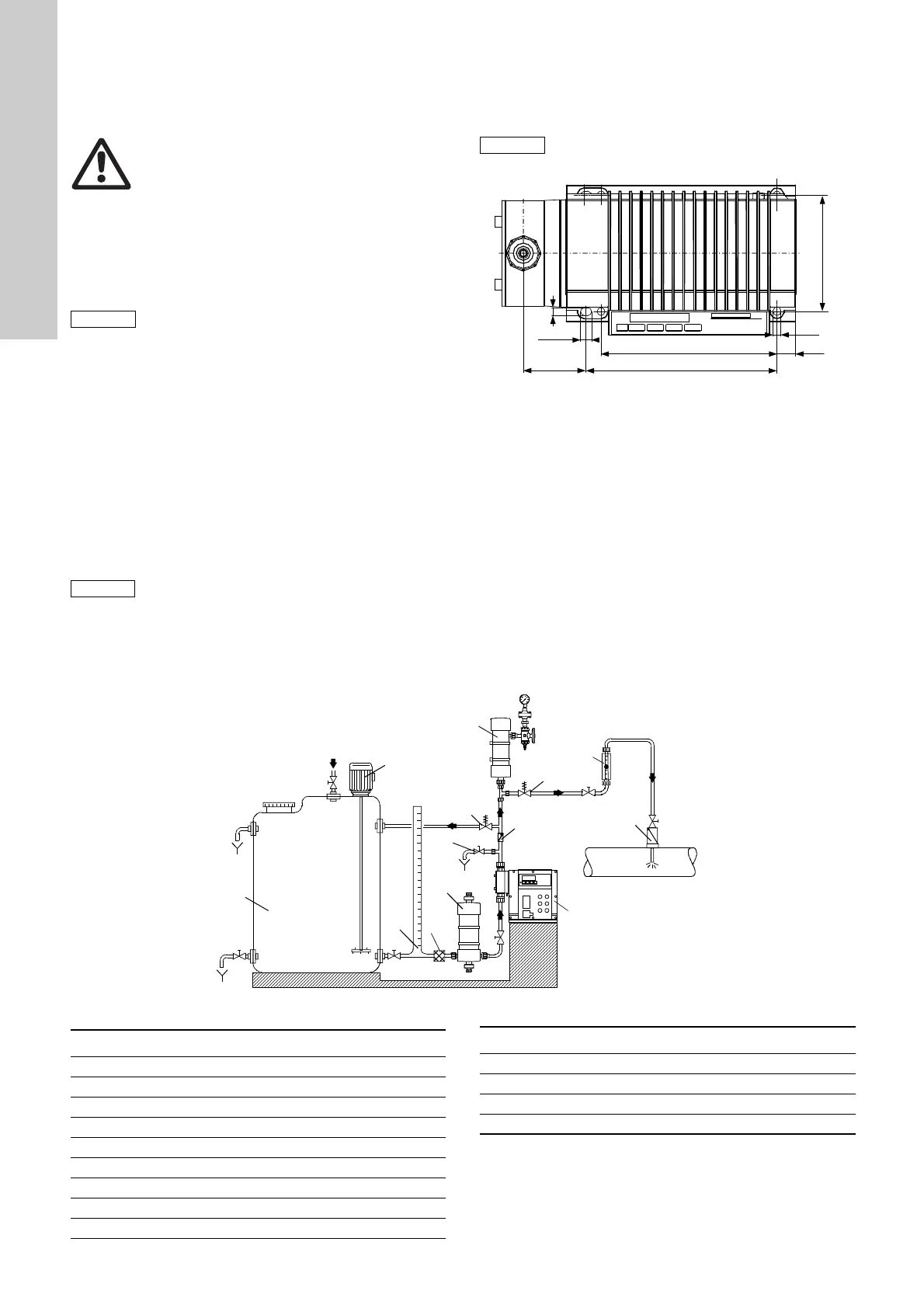
5.4 Exemples d'installation
Fig. 6 Exemple d'installation d'une pompe avec désaération manuelle
Avertissement
Danger en cas du non déclenchement de l'interrup-
teur différentiel !
Si la pompe est raccordée à une installation élec-
trique dans laquelle un interrupteur différentiel est
utilisé comme protection supplémentaire, celui-ci doit
se déclencher en cas de courants de défaut DC (cou-
rant continu pulsé). Il faut donc utiliser un interrup-
teur différentiel de type B, sensible au courant uni-
versel.
Nota
La pompe doit être installée de manière à laisser
libre accès pendant le fonctionnement et les
travaux de maintenance.
Précautions
L'installation doit être couverte.
S'assurer que l'indice de protection du moteur et de
la pompe ne sont pas affectés par les conditions
atmosphériques.
Les pompes à système électronique doivent être ins-
tallées uniquement en intérieur. Ne pas installer en
extérieur.
Précautions
Serrer les vis avec précaution, de manière à ne pas
endommager le logement en plastique.
TM03 6664 4506
7
9.95
7
(159)
172.5
16.5
105
C1
TM03 6665 4506
1i
2i
3i
4i
5i
6i
7i
9i
10i
8i
15i
11i
12i
Pos. Composants
1i Réservoir de dosage
2i Agitateur électrique
3i Dispositif d'extraction
4i Amortisseur de pulsation d'aspiration
5i Pompe doseuse
6i Soupape de décharge
7i Soupape de charge de pression
8i Amortisseur de pulsation
9i Tube de calibrage
10i Unité d'injection
11i Soupape de désaération et d'évacuation
12i Soupape à voie de retour
15i Filtre
Pos. Composants

Table of Contents

Related product manuals