EasyManua.ls Logo

Hakko Electronics FR-702 - Wiring Diagram

Hakko Electronics FR-702
72 pages
Print Icon
To Next Page IconTo Next Page
To Next Page IconTo Next Page
To Previous Page IconTo Previous Page
To Previous Page IconTo Previous Page
Loading...
69
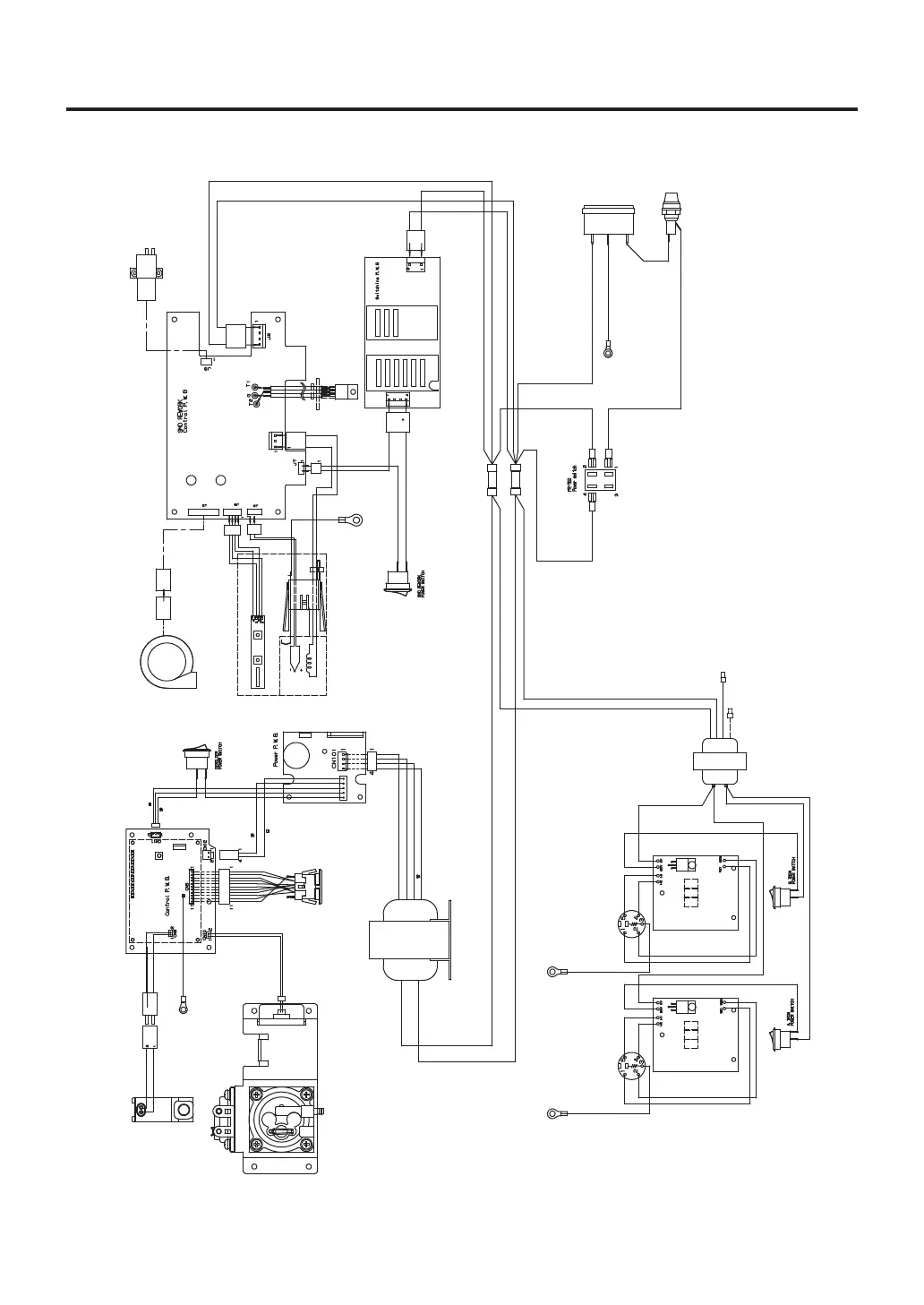
28. WIRING DIAGRAM
SOLDERP.W.B.SOLDERP.W.B.
DESOLDER
DESOLDER
Pump
Fan
Handpiece
Switch board
Green
Green
Red
Red
Brown
Black
Black
Black
Black
Black
Black
Black
White
White
White
White
Power receptacle
Green / Yellow
Transformer
Transformer
Green / YellowGreen / Yellow
White
White
Black
Black
Red
Red
White
White
Black
Black
Red
Red
BlackBlack
Black or Brown
White or Blue
Motor
Receptacle
Red
Black
Red
Black
Green / Yellow
Red
White
Red
Red
Blue
Blue

Related product manuals