EasyManua.ls Logo

HAMPTON BAY H27 - Wiring Diagrams and Safety; Wiring Diagram Without Thermostat; Electrical Grounding Safety Warning

HAMPTON BAY H27
60 pages
Print Icon
To Next Page IconTo Next Page
To Next Page IconTo Next Page
To Previous Page IconTo Previous Page
To Previous Page IconTo Previous Page
Loading...
Hampton
®
H27E-11 Direct Vent Freestanding Gas Stove | 41
installation
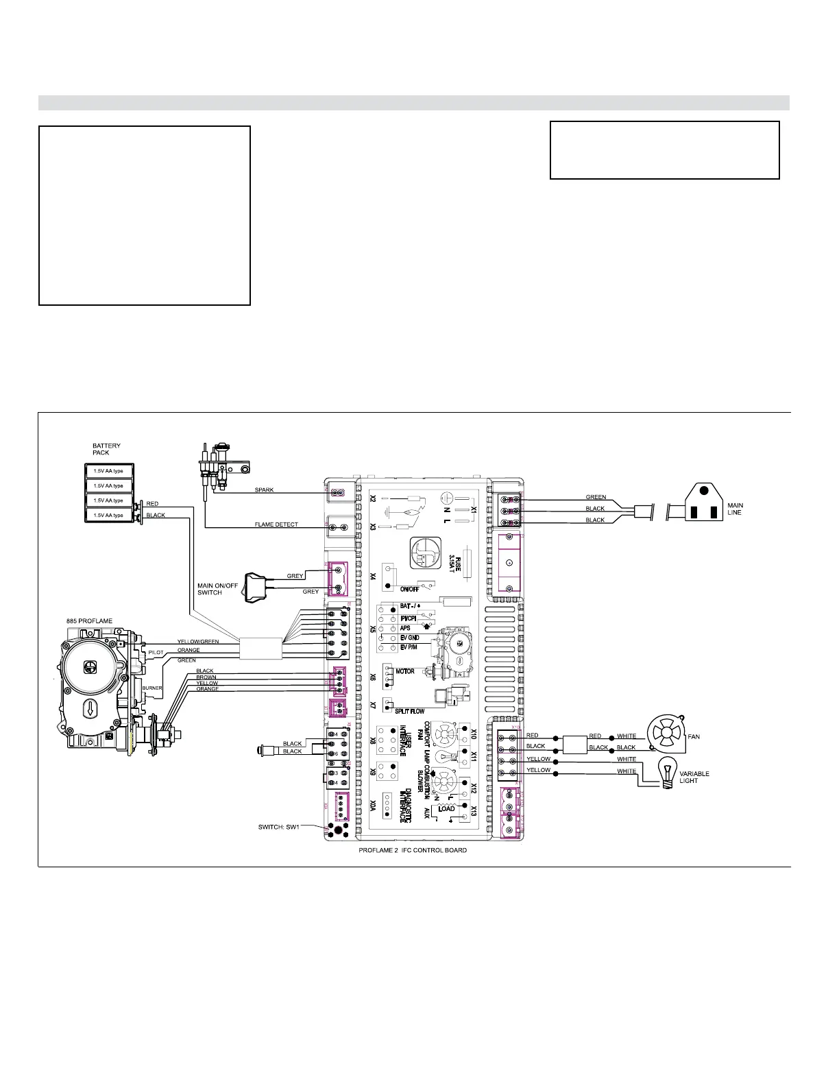
Wiring Diagram Without Thermostat
This heater does not require a 120V A.C. sup-
ply for operation. In case of a power failure, the
remote control/thermostat /ON/OFF switch will
continue to operate.
However, a 120V A.C. power supply is needed
for the fan/blower & light operation.
CAUTION: Ensure that the wires do
not touch a hot surface and are away
from sharp edges.
WARNING:
Electrical Grounding
Instructions
This appliance is equipped with
a three pronged (grounding) plug
for your protection against shock
hazard and should be plugged
directly into a properly grounded
three-prong receptacle. Do not
cut or remove the grounding
prong from this plug.
Note:
4 AA Batteries must be installed into the back
up battery compartment however for this unit to
operate when power is lost. See battery back up
instructions in this manual The fan and or lights
will not operate during a power outage.
RESET
SWITCH
RESET
SWITCH

Table of Contents

Related product manuals