EasyManua.ls Logo

Harnisch+Rieth D-G 16 S2 - Page 7

Harnisch+Rieth D-G 16 S2
17 pages
Print Icon
To Next Page IconTo Next Page
To Next Page IconTo Next Page
To Previous Page IconTo Previous Page
To Previous Page IconTo Previous Page
Loading...
6
D-G 16 S2 - 18.04.13 / Vers.: 1
45
42
48
41
31
8
64
63
19
62
27
26
4
10 46 3 29 40 30 47 3
61
50
33
34
18
49
43
1
20
70
28
75
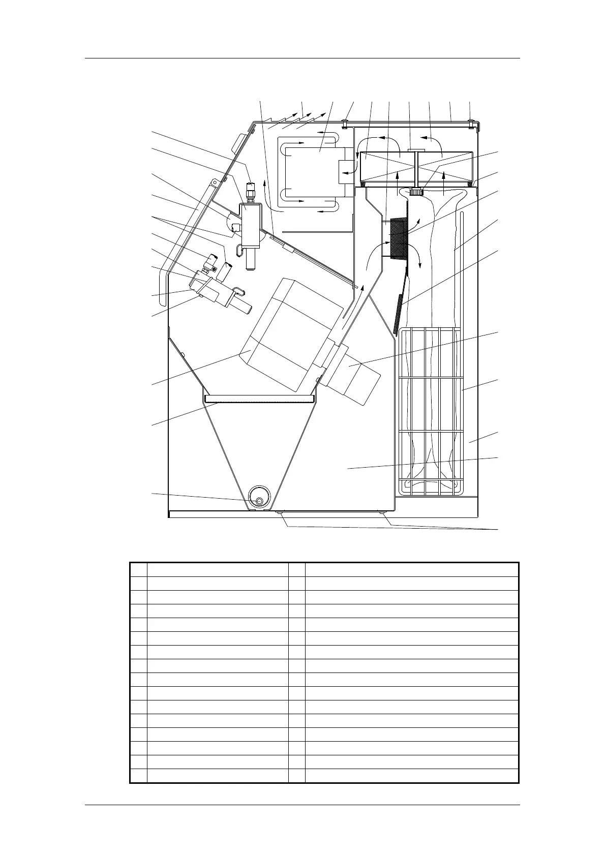
Fig. 3: Device sectioned through the middle and viewed from the right
1
Device lid 40
Support Ø 63 mm
3
4 x M5 hexagonal socket screws 41
Plastic connector for the filter bag
4
Front lid 42
Cover plate for filter bags
8
Slide-in sieve 43
2 x knurled nuts
10
Air outlet 45
Filter bag
18
Sandblasting area light (230V) 46
Aspirator motor
19
Injector mounting 47
Aspiration area
20
Injector 48
Mesh basket
26
Abrasive aspirator hose 49
Sealing surfaces
27
Air hose on the injector (20) 50
Filter area
28
Air hose on the injector (70) 61
Drive motor for sandblasting cage
29
Fine particle filter 62
Fastening binder (securing for transportation)
30
Fine particle filter bracket 63
Rounded head screw
31
Sand aspirator basket 64
Sandblasting cage
33
Middle floor area 70
Injector for manual blasting
34
4 x screws for floor area 75
Orientation pin