EasyManua.ls Logo

HBM U2A - 6 Abmessungen (in MM); Aufnehmer

HBM U2A
52 pages
Print Icon
To Next Page IconTo Next Page
To Next Page IconTo Next Page
To Previous Page IconTo Previous Page
To Previous Page IconTo Previous Page
Loading...
29
U2A
HBMA1261-2.2 en/de/fr
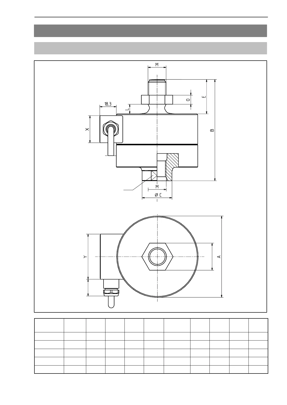
6 Abmessungen (in mm)
6.1 Aufnehmer
Draufsicht
SW
SW
ca. 18,5
U2A (Nennlasten 50 kg ... 20 t)
Nennlast
in t
ØA
−0,2
B C E L
min
M O SW X Y
0,05 ... 1 50 72 21 24 5*
)
M12 6 19 20 35
2 90 112 33 38 10,6 M20x1,5 10 30 30 50
5 100 141 40 47 13,2 M24x2 12 36 30 50
10 135 197 68 67 19 M39x2 19 60 30 50
20 155 232 82 85 24,2 M48x2 22 70 30 50
*)
bei U2A/1t: 7,4 mm

Related product manuals