EasyManua.ls Logo

HIdRos GH50 - Page 39

Default Icon
44 pages
Print Icon
To Next Page IconTo Next Page
To Next Page IconTo Next Page
To Previous Page IconTo Previous Page
To Previous Page IconTo Previous Page
Loading...
Rev. B 08-2017
39
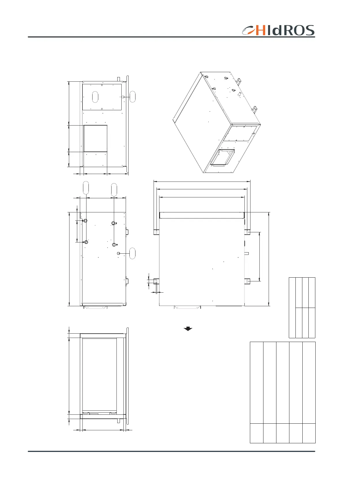
FLUSSO ARIA
AIR FLOW
Ep
Es
Cd
OUT
IN
800
127 228 374
38 654 38
21 350 21
25
8
775
728,4
800
420
825
184
54
73
182 200 32
238101
Ep
Es
Cd
OUT
Ø1 /2”GF
IN
Ø1 /2”GF
MTEC.4680.GB-B-1 Operation and maintenance manual GH serie English
GH Dehumidiers for radiant cooling system
Dimensional drawing GH 100 - 100WZ
ELECRICAL PANEL
POWER SUPPLY DRAIN INLET
CONDENSATE DRAIN
USER WATER OUTLET
USER WATER INLET
WEIGHT OF THE UNIT
Modd. WEIGHT (Kg)
GH 100 87
GH 100 WZ 90

Table of Contents

Related product manuals