EasyManua.ls Logo

Hisense MR6DE - Page 52

Hisense MR6DE
105 pages
Print Icon
To Next Page IconTo Next Page
To Next Page IconTo Next Page
To Previous Page IconTo Previous Page
To Previous Page IconTo Previous Page
Loading...
10
05'(8VHU0DQXDO
*XtDGH,QVWDODFLyQ
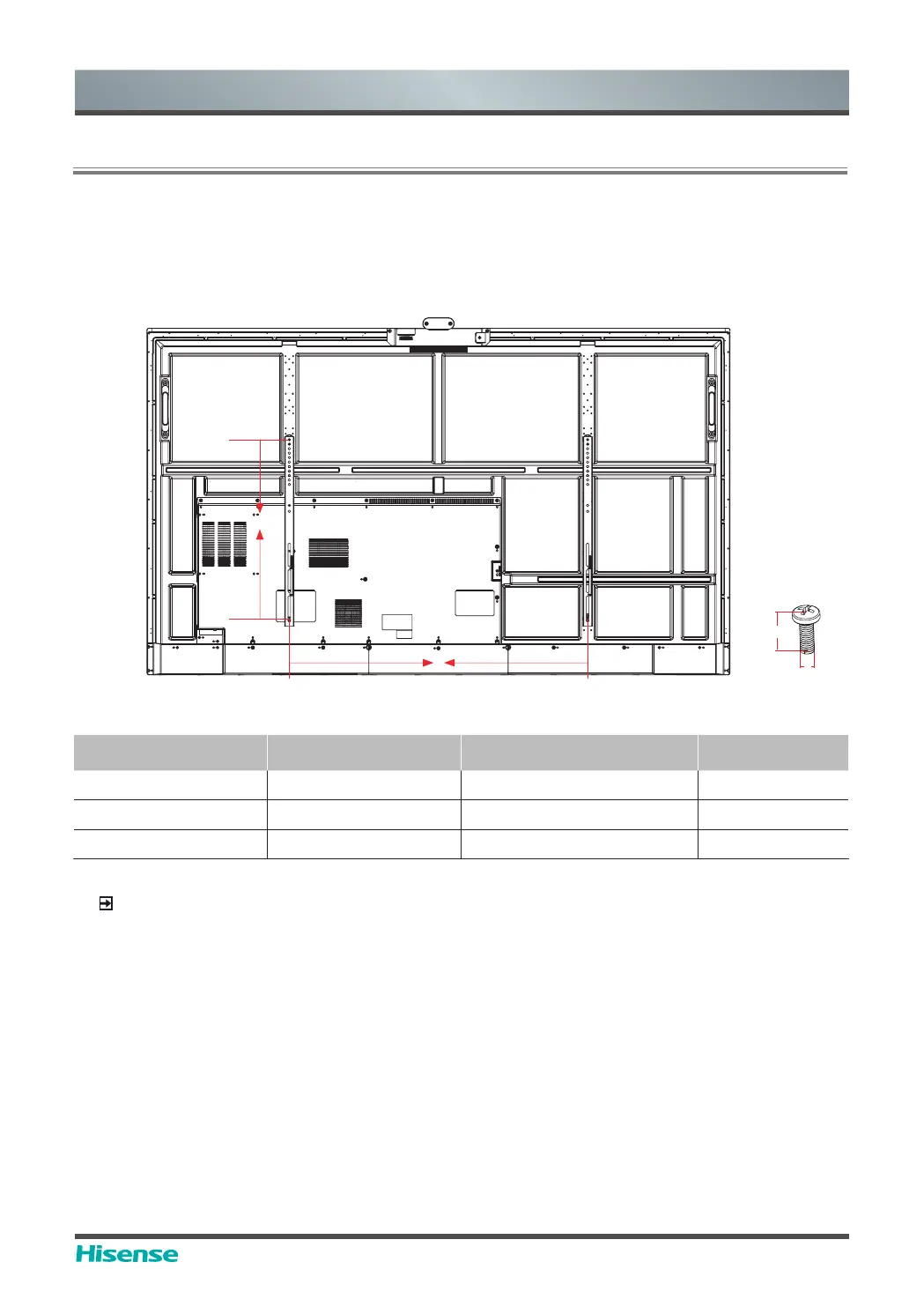
(VSHFLILFDFLRQHVGHO.LWGH0RQWDMHHQ3DUHG9(6$
 *XtDGH,QVWDODFLyQ
B
A
127$
1RXWLOLFHWRUQLOORVTXHVHDQPiVODUJRVTXHODGLPHQVLyQHVWiQGDU\DTXHSXHGHQFDXVDU
GDxRVHQHOLQWHULRUGHODSDQWDOOD
0RGHOR
(VSHFLILFDFLyQ9(6$
$î%
7RUQLOOR(VWiQGDU&[' &DQWLGDG
65MR6DE 600 × 400mm M8 × 25 4
75MR6DE 600 × 600mm M8 × 25 4
86MR6DE 1000 × 600mm M8 × 25 4
D
C

Related product manuals