EasyManua.ls Logo

Honda EC2000 - Wiring Diagrams; EC5000 Model Wiring; Wiring Color Code Explanation

Honda EC2000
88 pages
Print Icon
To Next Page IconTo Next Page
To Next Page IconTo Next Page
To Previous Page IconTo Previous Page
To Previous Page IconTo Previous Page
Loading...
12 EN
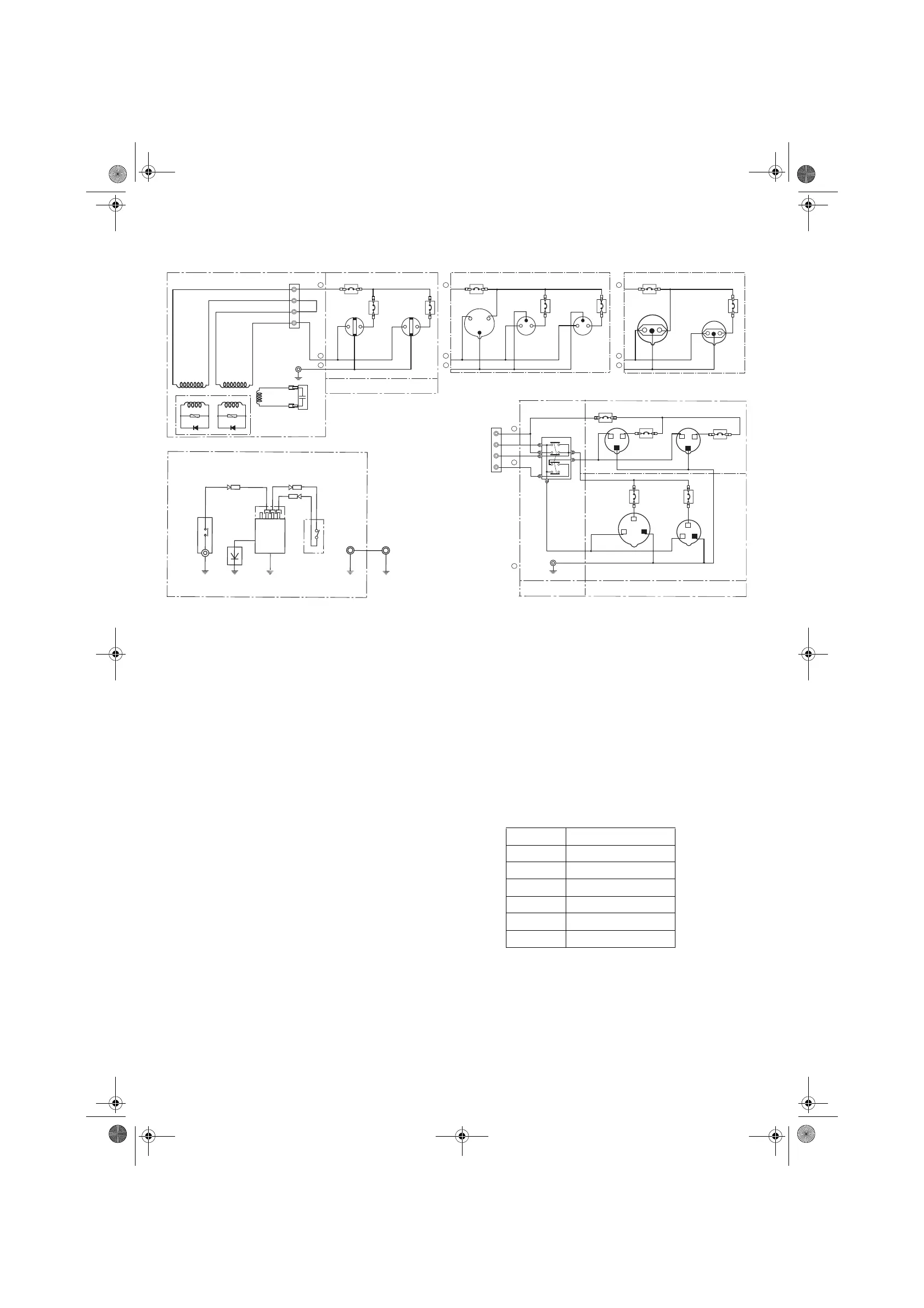
EC5000
[1] Generator block [12] AC outlet 115 V
[2] AC outlet [13] Engine block
[3] Thermal circuit breakers [14]
Tr-mag unit
[4] Receptacle
230 V / 16 A (blue) [15] Oil alert unit
[5] Earth terminal [16] Spark plug
[6]
Capacitor 35 µF [17] Ignition coil
[7]
Control box block [18] Engine switch
[8] Receptacle 230 V / 32 A (blue) [19] Oil level switch
[9] Voltage selector switch 115 / 230V [20]
Engine earth
[10] Receptacle
115 V / 32 A (yellow) [21] Frame earth
[11] Receptacle 115 V / 16 A (yellow)
[M1W] [M2W] Stator winding
[EXW] Excitation winding
[FW] Field winding
FGV, GVW IT
G
R
Y/G
Y/G
Y/G
G
[2]
[3]
[3]
G
a
b
c
R
G
R
[8]
GG
G
G
Y/G
G
G
R
Y/G
Y/G
Y/G
G
[2]
[3]
[4]
G
a
b
c
R
R
G
G
G
W
Y
RR
G
Y
G
R
Y/G
Y/G
Y/G
G
[1] [2]
[3]
[4]
[3]
[5]
G
a
b
c
R
G
R
[7]
[EXW]
[M1W] [M2W]
[FW]
[6]
GG
R
G
G
R
W
Y/G
Y/G
G
G
R
G
G
[12]
W
Y
A
B
C
D
3
5
6
1
4
2
G
R
G
Y/G
Y/G
W
W
Y
Y
Y
Y
Y
Y/G
Y/G
Y/G
Y
R
[2]
[3][3]
[9]
[3]
[3]
[4]
[3]
[3]
[10]
[11]
[5]
[7]
B
a
b
c
[3]
[4]
[3]
[3]
[8]
[4]
[4]
[4]
[13]
[19] [16] [17] [18]
[20] [21]
B
Y
R
R
B
Y
LED
OIL_ALT
EXT (-)
EXT (+)
Wiring color codes
BBlack
B
l Blue
GGreen
RRed
WWhite
Y Yellow
Y/G Yellow / Green
OM EC Serie_.book Page 12 Lundi, 12. mars 2012 9:27 09

Table of Contents

Related product manuals